Hiện nay xu hướng thiết kế nhà 1 trệt 3 lầu sân thượng đang nhận được sự yêu thích từ đông đảo khách hàng. Với mong muốn tìm kiếm thêm nhiều ý tưởng thiết kế mới lạ, độc đáo cho không gian biệt thự của mình, nhiều khách hàng đã lựa chọn mẫu thiết kế 1 trệt 3 lầu sân thượng để tạo ra không gian sống hiện đại, sang trọng, tiện nghi và đẳng cấp. Nếu bạn cũng là một người đam mê kiến trúc và muốn tìm hiểu thêm các mẫu thiết kế nội thất biệt thự 1 trệt 3 lầu thì đừng bỏ qua bài này từ Việt Quang Group nhé!
1. Kiến trúc hiện đại vẻ đẹp cửa sinh tinh tế, uy quyền vượt thời gian
Biệt thự 1 trệt 3 lầu tum sân thượng là loại hình nhà ở cao cấp đang được nhiều chủ đầu tư yêu thích trong những năm gần đây. Khác với kiến trúc cổ điển hay tân cổ điển cầu kỳ, phong cách hiện đại chú trọng vào đường nét tối giản, hình khối vững chắc và bố cục phi đối xứng. Điều này giúp không gian trở nên thanh thoát, sang trọng nhưng vẫn toát lên cá tính riêng của gia chủ.
Các kiến trúc sư Việt Quang Group luôn đề cao triết lý “Less is more”, trong đó mọi chi tiết đều có dụng ý thẩm mỹ và công năng rõ ràng. Vật liệu được sử dụng chủ yếu là kính cường lực, bê tông, đá ốp, lam nhôm và gỗ nhân tạo vừa tạo điểm nhấn, vừa mang đến vẻ đẹp bền vững theo thời gian. Hệ thống cửa kính lớn kết hợp ban công rộng, lam che nắng tinh tế không chỉ giúp tối ưu ánh sáng tự nhiên mà còn tăng tính kết nối giữa không gian trong và ngoài nhà.
Một trong những yếu tố quan trọng quyết định giá trị thẩm mỹ của biệt thự chính là thiết kế mặt tiền. Đối với mẫu biệt thự 1 trệt 3 lầu tum sân thượng, Việt Quang Group hướng đến bố cục đơn giản mà sang trọng, với các mảng khối rõ ràng, kết hợp vật liệu hiện đại tạo nên diện mạo bề thế và đẳng cấp.
Tone màu chủ đạo thường được lựa chọn là trắng, xám, nâu gỗ, kết hợp cùng ánh đèn vàng ấm, giúp căn biệt thự luôn nổi bật, hài hòa với tổng thể cảnh quan. Hệ thống cửa kính full mặt tiền không chỉ giúp mở rộng tầm nhìn mà còn tạo cảm giác không gian thông thoáng, hiện đại. Với những biệt thự nằm tại khu đô thị hoặc khu dân cư cao cấp, thiết kế mặt tiền còn được nhấn mạnh bởi mảng tường ốp đá granite hoặc lam nhôm giả gỗ, giúp công trình mang vẻ sang trọng, bền màu theo thời gian.
Bố trí công năng đáp ứng mọi nhu cầu sinh hoạt
Một căn biệt thự 1 trệt 3 lầu tum sân thượng không chỉ thể hiện đẳng cấp thẩm mỹ mà còn cần đảm bảo sự tiện nghi, thuận tiện trong sinh hoạt hằng ngày. Việt Quang Group luôn chú trọng vào giải pháp công năng hợp lý, mang đến trải nghiệm sống thoải mái cho từng thành viên trong gia đình.
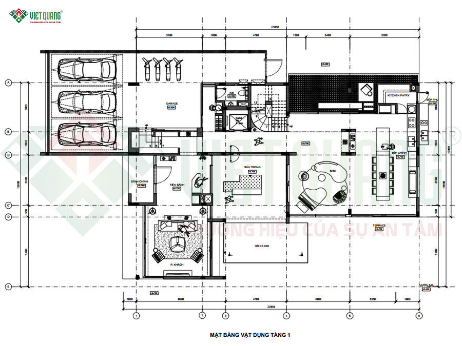
1. Mặt bằng tầng trệt – Không gian sinh hoạt và đón khách sang trọng
Tầng trệt được thiết kế rộng rãi, tối ưu công năng cho sinh hoạt gia đình kết hợp tiếp đón khách quý. Khu vực garage phía trước có sức chứa lên đến 3 ô tô và nhiều xe máy, thuận tiện cho gia chủ có nhu cầu sử dụng phương tiện cá nhân.
Từ sảnh chính bước vào là phòng khách lớn với không gian mở, liên thông cùng tiểu cảnh hồ cá Koi được bố trí ngay trung tâm tầng trệt, mang đến yếu tố phong thủy và cảm giác thư giãn, gần gũi thiên nhiên. Phía bên trong là phòng sinh hoạt chung nơi cả gia đình có thể quây quần trò chuyện, xem phim, nghỉ ngơi. Khu bếp và phòng ăn được bố trí cuối nhà với thiết kế bếp chữ L hiện đại, tích hợp bếp chiên riêng và khu vực quầy bar tiện dụng. Bên cạnh sân hiên không gian mở đón nắng và gió, thích hợp tổ chức tiệc BBQ ngoài trời.
Khu vực sân trong nằm giữa nhà giúp đón sáng, thông gió tự nhiên cho toàn bộ tầng trệt. Ngoài ra còn có phòng vệ sinh, khu giặt phơi nhỏ, thang máy, cầu thang bộ và phòng bảo vệ được sắp xếp hợp lý, đảm bảo tiện nghi và an toàn.
2. Mặt bằng tầng 2 – Không gian riêng tư, thư giãn và làm việc
Bước lên tầng 2, không gian được chia thành các khu chức năng phục vụ cho nghỉ ngơi – làm việc – giải trí.
- Phòng ngủ Master rộng lớn với ban công riêng, phòng thay đồ, phòng tắm lớn có bồn ngâm – mang đến cảm giác như một suite khách sạn hạng sang.
- Phòng ngủ phụ dành cho con được thiết kế khoa học, sử dụng nội thất gọn gàng, có ban công đón nắng tự nhiên.
- Phòng đa năng ở giữa nhà có thể sử dụng làm phòng sinh hoạt chung hoặc không gian học tập.
- Khu làm việc và phòng Home Music được bố trí ở phía trước, có view hướng ra ban công, đảm bảo không gian sáng sủa, yên tĩnh. Đây là điểm nhấn sáng tạo giúp gia chủ tận hưởng cảm giác thư giãn trong chính căn biệt thự của mình.
- Kho rượu mini đặt cạnh phòng làm việc, kết hợp tủ trưng bày nghệ thuật – một chi tiết tinh tế thể hiện gu thẩm mỹ và phong cách sống đẳng cấp.
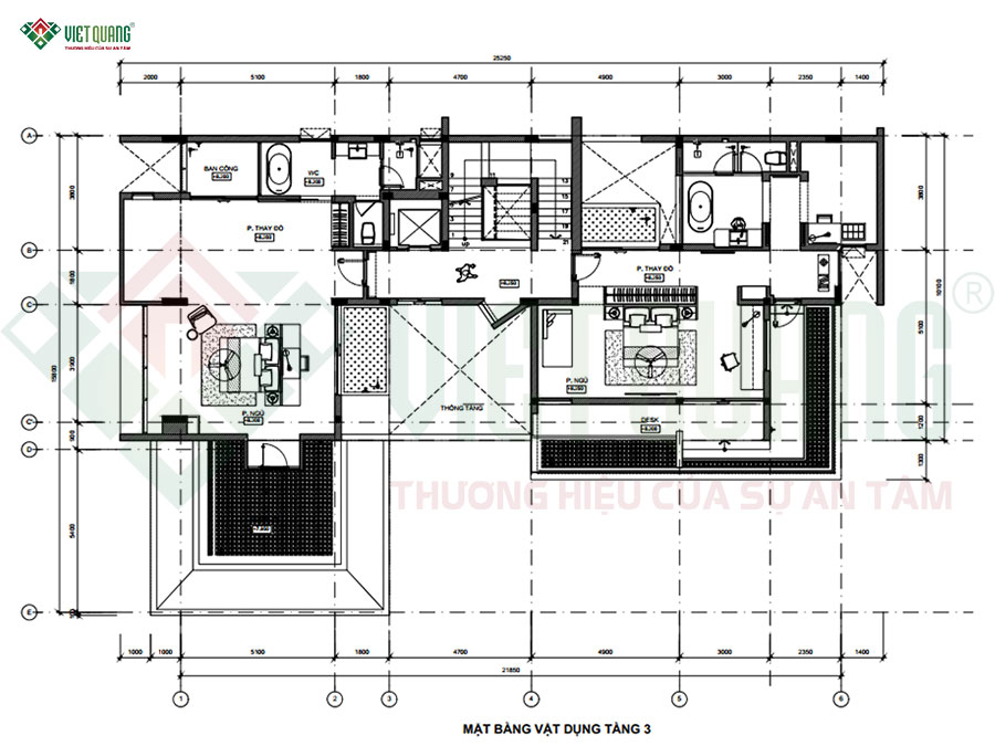
3. Mặt bằng tầng 3 – Không gian nghỉ ngơi với hệ thống phòng ngủ riêng biệt, tiện nghi
Toàn bộ tầng 3 được tận dụng làm khu vực nghỉ ngơi riêng tư của gia đình.
- Hai phòng ngủ lớn, mỗi phòng đều có phòng thay đồ riêng, phòng tắm khép kín và ban công hướng ra ngoài, đảm bảo thông thoáng và ánh sáng tự nhiên.
- Phòng ngủ Master thứ hai có thêm góc đọc sách và phòng tắm view sân vườn, tạo cảm giác gần gũi thiên nhiên.
- Phòng ngủ khách được thiết kế tối giản nhưng vẫn đầy đủ tiện nghi, phù hợp cho người thân hoặc bạn bè lưu trú dài ngày.
- Ở giữa tầng là khu vực thông tầng, giúp không khí lưu thông và ánh sáng lan tỏa đều khắp không gian.
Mỗi chi tiết trong tầng 3 đều được tính toán kỹ lưỡng, từ vị trí giường ngủ, hướng ban công cho đến lối đi, đảm bảo tính phong thủy và sự thoải mái tối đa cho người ở.
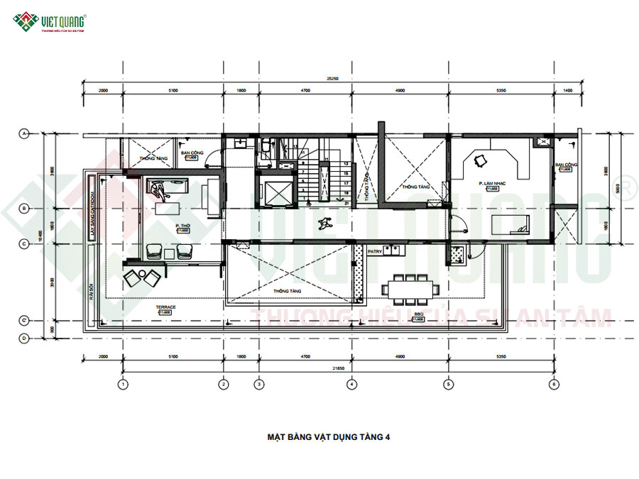
4. Mặt bằng tầng 4 – Không gian thư giãn và tâm linh
Tầng 4 là điểm nhấn tinh tế của biệt thự, kết hợp không gian sinh hoạt tinh thần và thư giãn ngoài trời.
- Phòng thờ trang nghiêm, bố trí ở vị trí cao nhất và yên tĩnh nhất của ngôi nhà, hướng ra terrace thoáng đãng. Gia chủ có thể dễ dàng đón ánh sáng buổi sớm hoặc ngắm hoàng hôn mỗi chiều.
- Phòng làm nhạc (Music Room) được đặt riêng biệt, cách âm tốt, là nơi gia chủ tận hưởng sở thích nghệ thuật và giải trí.
- Khu bếp BBQ ngoài trời một không gian mở để gia đình tổ chức tiệc, họp mặt, vừa nướng BBQ vừa trò chuyện, rất phù hợp với phong cách sống hiện đại.
- Các ban công phụ ở hai đầu tầng giúp tăng khả năng lấy sáng và thông gió tự nhiên.
Đặc biệt, tầng này vẫn giữ lại khu vực thông tầng xuyên suốt 4 sàn, tạo nên hiệu ứng thị giác ấn tượng, giúp không khí luôn đối lưu và căn biệt thự trở nên nhẹ nhàng, thanh thoát.
5. Mặt bằng sân thượng – Không gian xanh và thư giãn tối đa
Trên cùng là sân thượng, “lá phổi xanh” của căn biệt thự. Diện tích sân được tận dụng cho vườn cảnh, khu thư giãn và khu kỹ thuật.
- Sân thượng rộng lớn được chia làm hai khu: khu trồng cây xanh, tiểu cảnh và khu ngồi nghỉ thư giãn, nơi gia chủ có thể tập thể dục, ngắm cảnh hoặc tổ chức tiệc ngoài trời.
- Khu kỹ thuật bao gồm bồn nước, máy năng lượng mặt trời, được bố trí gọn gàng về một phía nhằm đảm bảo thẩm mỹ tổng thể.
- Thang máy và cầu thang bộ đều dẫn lên sân thượng, tiện cho việc di chuyển, bảo trì hoặc chăm sóc cây cảnh.
Không gian trên cao được bao phủ bởi hệ thống mái hiện đại kết hợp lam chắn nắng giúp hạn chế nhiệt độ, tạo cảm giác mát mẻ quanh năm.
Biểu tượng của phong cách sống đẳng cấp trong từng chi tiết
Tổng thể mẫu biệt thự 1 trệt 3 lầu tum sân thượng là sự kết hợp hoàn hảo giữa kiến trúc hiện đại – công năng tối ưu – không gian xanh hòa hợp thiên nhiên. Từ tầng trệt cho đến sân thượng, mọi chi tiết đều được kiến trúc sư Việt Quang Group tính toán kỹ lưỡng, mang đến sự tiện nghi vượt trội và trải nghiệm sống sang trọng cho gia chủ. Thiết kế này không chỉ là một ngôi nhà, mà còn là tuyên ngôn về phong cách sống hiện đại – nơi mỗi thành viên có thể tận hưởng cuộc sống trong không gian riêng, nhưng vẫn gắn kết trọn vẹn trong một tổng thể hài hòa.
- Không gian sống đẳng cấp: Mỗi tầng đều được bố trí hợp lý, mang lại sự riêng tư và tiện nghi. Khu vực sân thượng giúp tận hưởng không khí trong lành, nơi cả gia đình có thể thư giãn sau ngày dài.
- Thiết kế tối ưu công năng: Dù diện tích lớn hay nhỏ, Việt Quang Group đều có giải pháp bố trí khoa học, tối đa hóa diện tích sử dụng mà vẫn đảm bảo tính thẩm mỹ cao.
- Tính linh hoạt cao: Biệt thự 1 trệt 3 lầu tum sân thượng có thể kết hợp ở – kinh doanh – cho thuê, đáp ứng nhu cầu đa dạng của gia chủ.
- Phong cách hiện đại, hợp xu hướng: Thiết kế mang tính thời đại, phù hợp với mọi loại hình khu dân cư, dễ dàng nâng cấp, cải tạo trong tương lai.
Vì sao nên chọn Việt Quang Group thiết kế & thi công biệt thự?
Với hơn 15 năm kinh nghiệm cùng hàng trăm công trình đã bàn giao khắp TP.HCM và các tỉnh thành lân cận, Việt Quang Group tự hào là lựa chọn hàng đầu của khách hàng khi muốn kiến tạo không gian sống đẳng cấp, khác biệt.
1. Đội ngũ kiến trúc sư & kỹ sư chuyên môn cao
Việt Quang Group sở hữu đội ngũ kiến trúc sư, kỹ sư kết cấu, kỹ sư M&E giàu kinh nghiệm, luôn cập nhật xu hướng kiến trúc hiện đại trong và ngoài nước. Mỗi bản vẽ đều được nghiên cứu kỹ lưỡng về phong thủy, công năng, tính thẩm mỹ và khả năng thi công thực tế, đảm bảo ngôi nhà không chỉ đẹp mà còn bền vững theo thời gian.
2. Thiết kế sáng tạo, thi công chuẩn kỹ thuật
Mỗi công trình biệt thự do Việt Quang Group thực hiện đều mang đậm dấu ấn riêng, phản ánh phong cách sống, gu thẩm mỹ và cá tính của chủ nhân. Từ khâu thiết kế kiến trúc – phối cảnh 3D – thiết kế nội thất đến thi công hoàn thiện, mọi giai đoạn đều được kiểm soát chặt chẽ. Vật liệu sử dụng đều đạt chuẩn cao cấp, đảm bảo độ bền – tính thẩm mỹ – an toàn kết cấu.
3. Quy trình làm việc minh bạch, tối ưu chi phí
Việt Quang Group luôn cam kết minh bạch trong từng giai đoạn:
- Báo giá chi tiết, rõ ràng theo từng hạng mục.
- Có hợp đồng cam kết tiến độ, chất lượng, bảo hành lâu dài.
- Giúp khách hàng tiết kiệm 10–20% chi phí nhờ quản lý thi công hiệu quả và hạn chế phát sinh.
Nhờ đó, Việt Quang Group không chỉ là nhà thầu uy tín, mà còn là đối tác tin cậy, đồng hành cùng khách hàng trong suốt hành trình xây dựng ngôi nhà mơ ước.
4. Cam kết “bàn giao chuẩn – vượt mong đợi”
Mỗi công trình khi bàn giao đều được kiểm định kỹ lưỡng theo quy trình nội bộ gồm hơn 200 tiêu chí kỹ thuật, đảm bảo chất lượng đạt chuẩn cao nhất. Việt Quang Group luôn hướng đến giá trị “xây niềm tin – dựng hạnh phúc”, mang lại cho khách hàng không chỉ một ngôi nhà, mà là một tổ ấm bền vững, đáng tự hào qua nhiều thế hệ.
Việt Quang Group – Kiến tạo không gian sống đẳng cấp, bền vững cùng thời gian.
Nếu bạn đang tìm một đơn vị thiết kế và thi công biệt thự 1 trệt 3 lầu sân thượng hiện đại, hãy để Việt Quang Group đồng hành cùng bạn từ bản vẽ đầu tiên đến khi ngôi nhà hoàn thiện – đẹp hơn cả mong đợi.






 
									 
									 
									 
									




















































































































































































































 
							 
											 
											 
											 
											 
											 
											 
											 
											 
		



















































































































































































































 
										 
												 
												 
												 
												 
												 
												 
												
 
							


 
	
 
			





