Mẫu thiết kế 3 tầng 4x14m phong cách tân cổ điển – Đẳng cấp tinh tế trong từng chi tiết

Nếu như bạn đã quá quen thuộc với những mẫu nhà phố thiết kế hiện đại, tối giản tập trung vào sự tiện nghi cho quá trình sử dụng. Thì những mẫu nhà phố tân cổ điển lại thể hiện được vẻ đẹp sang trọng, tinh tế, đầy ấn tượng trong không gian ngoại thất. Mẫu nhà phố 3 tầng tân cổ điển 4x14m nhấn mạnh vào chi tiết, từng đường nét nhẹ nhàng, thanh thoát không quá cầu kỳ nhưng lại mang đến vẻ đẹp cuốn hút, mời mẻ tạo ấn tượng khó quên cho người nhìn.

Mẫu nhà phố 3 tầng 4x14m do Việt Quang Group thiết kế và thi công là một minh chứng rõ nét cho sự hòa quyện giữa vẻ đẹp sang trọng, tinh tế và công năng tối ưu. Không rườm rà như cổ điển, cũng không quá đơn giản như hiện đại, tân cổ điển mang đến một phong thái đẳng cấp – đủ tinh tế để tạo sự nổi bật, đủ nhẹ nhàng để phù hợp với nhịp sống đô thị.

Thiết kế 3D mặt tiền và mặt bằng bố trí công năng nhà 3 tầng 4x14m tân cổ điển

Thiết kế 3D mặt tiền và mặt bằng bố trí công năng nhà 3 tầng 4x14m tân cổ điển

Bài viết dưới đây sẽ đưa bạn khám phá toàn bộ giá trị của mẫu thiết kế này từ kiến trúc mặt tiền, bố trí công năng, đến ưu điểm nổi bật và lý do vì sao đây là lựa chọn hoàn hảo cho gia đình trẻ hiện nay.

>>>Tham khảo dịch vụ xây dựng phổ biến tại Tp.HCM:

Kiến trúc mặt tiền diện tích 4x14m – Vẻ đẹp thanh lịch, tối giản nhưng đầy cuốn hút

Ấn tượng đầu tiên của mẫu nhà 3 tầng 3x14m chính là hệ mặt tiền thanh thoát, trang nhã, mang đúng tinh thần của kiến trúc tân cổ điển: Hài hòa, cân đối, sang trọng. Dù bề ngang ngôi nhà chỉ rộng 4m nhưng các kiến trúc sư Việt Quang Group đã khéo léo xử lý tỷ lệ hình khối để tạo cảm giác cao ráo, bề thế. Kết hợp hệ thức cột vuông tròn vừa vững chắc vừa mềm mại, các đường phào chỉ được tiết chế tinh gọn, điểm xuyến hợp lý đúng vị trí làm tăng giá trị thẩm mỹ mà không gây rối mắt. Trong khi phần mái được sử dụng là kiểu mái thái giúp mặt tiền ngôi nhà thêm thanh thoát, đẳng cấp, sang trọng nhưng vẫn mang dáng dấp của nét đẹp truyền thống.

Mẫu thiết kế nhà 3 tầng 4x14m phong cách tân cổ điển

Mẫu thiết kế nhà 3 tầng 4x14m phong cách tân cổ điển

Tổng thể công trình sử dụng chủ đạo gam màu trắng, sắc màu lý tưởng cho kiến trúc tân cổ điển bởi khả năng làm rộng không gian, tôn lên đường nét phào chỉ và giữ được vẻ đẹp bền vững theo thời gian. Khi kết hợp cùng ánh sáng tự nhiên, ngôi nhà càng trở nên nổi bật và sang trọng giữa khu phố.

>>> Nếu Quý vị quan tâm, cần lên thiết kế nhà hãy xem ngay: Đơn giá thiết kế nhà ở mới nhất năm 2026

Bố trí công năng khoa học tối ưu không gian nhà 3 tầng tân cổ điển diện tích 4x14m

Với những mẫu nhà phố diện tích khiêm tốn, bài toán lớn nhất luôn nằm ở việc sắp xếp không gian vừa tiện nghi, vừa thông thoáng nhưng vẫn được vẻ đẹp sang trọng, đẳng cấp của phong cách tân cổ điển. Bằng kinh nghiệm hơn 15 năm thiết kế thi công trọn gói nhà phố, Việt Quang Group đã giúp gia chủ lập phương án bố trí công năng rất khoa học, giúp tận dụng tối đa từng m2 diện tích.

Tầng 1: Được thiết kế theo mô hình mở, tạo sự liên kết hài hòa giữa các khu vực, bao gồm:

  • Sân trước để xe tiện dụng
  • Phòng khách rộng rãi
  • Phòng bếp – bàn ăn liên thông
  • Khu vệ sinh cuối nhà

Cách bố trí khách – bếp liền kề không những giúp dòng di chuyển trong nhà mạch lạc hơn mà còn mang lại cảm giác rộng rãi, thoáng sáng, thanh lịch và ấm cúng.

Mặt bằng bố trí vật dựng tầng 1

Mặt bằng bố trí vật dựng tầng 1

Tầng 2: Được bố trí đầy đủ tiện ích, phục vụ nhu cầu nghỉ ngơi của gia đình, bao gồm: 02 Phòng ngủ và nhà vệ sinh chung. Hai phòng ngủ đều được thiết kế đón ánh sáng tự nhiên, thông qua hệ cửa sổ lớn giúp lưu thông không khí và mang gió trời vào nhà tạo không gian ấm áp, sáng sủa, một không gian nghỉ ngơi thoải mái và đúng nghĩa.

Mặt bằng bố trí vật dựng tầng 2

Mặt bằng bố trí vật dựng tầng 2

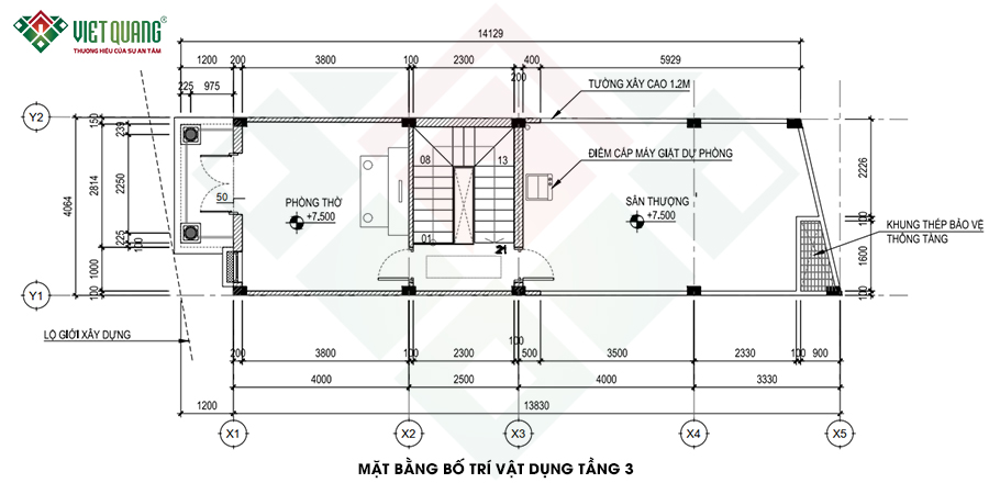
Tầng 3: Được thiết kế gồm phòng thờ và khu vực sân thượng phía sau. Giải pháp thiết kế đặt phòng thờ ở tầng trên cùng vừa đảm bảo yếu tố phong thủy, vừa mang đến sự yên tĩnh và thoáng sáng cho không gian tâm linh. Khu giặt phơi được đưa ra phía sau giúp tận dụng ánh nắng tự nhiên, giữ cho toàn bộ tầng 3 gọn gàng và sạch sẽ.

Mặt bằng bố trí vật dựng tầng 3

Mặt bằng bố trí vật dựng tầng 3

Vì sao mẫu nhà phố 3 tầng tân cổ điển được yêu thích? 

Mẫu nhà phố tân cổ điển 4x14m được ưa chuộng nhờ sự kết hợp hoàn hảo giữa thẩm mỹ, công năng và chi phí hợp lý. Diện tích 4x14m rất phù hợp với gia đình trẻ 4–5 thành viên, với các tiện ích đầy đủ:

  • 3 phòng ngủ tiện nghi, đảm bảo không gian riêng tư và thoải mái.
  • Không gian sinh hoạt chung rộng rãi, thoáng mát, lý tưởng cho các hoạt động gia đình.
  • Khu vực phòng thờ, giặt phơi riêng biệt, khoa học và tiện lợi.
  • Mặt tiền sang trọng, nâng tầm giá trị tổng thể ngôi nhà.
Mẫu thiết kế nhà 3 tầng 4x14m phong cách tân cổ điển

Mẫu thiết kế nhà 3 tầng 4x14m phong cách tân cổ điển

Phong cách tân cổ điển mang lại vẻ đẹp thanh lịch, sang trọng nhưng không tốn quá nhiều chi phí nhờ tối giản hình khối và phào chỉ tinh tế. Các vật liệu được chọn lọc kỹ lưỡng, gồm: sơn chống thấm – chống bám bụi, lan can sắt nghệ thuật sơn tĩnh điện, hệ cửa nhôm kính cao cấp và kết cấu thép – bê tông vững chắc, giúp ngôi nhà bền vững theo thời gian, giảm chi phí bảo trì.

Đặc biệt, với mặt tiền hẹp chỉ 4m, kiến trúc sư Việt Quang Group đã xử lý khéo léo hình khối, ánh sáng và chi tiết phào chỉ, mang đến công trình thanh thoát, chi tiết tinh tế, tỷ lệ hài hòa, tạo nên một diện mạo hoàn hảo mà chỉ những đơn vị có kinh nghiệm lâu năm mới đảm bảo được.

Thiết kế thi công trọn gói cùng Việt Quang Group tại sao không?

Để sở hữu một công trình đẹp, chuẩn tân cổ điển và tối ưu chi phí, lựa chọn nhà thầu uy tín là yếu tố quyết định. Việt Quang Group tự hào là đơn vị thiết kế thi công trọn gói được hàng nghìn khách hàng tin tưởng nhờ:

Miễn phí 100% hồ sơ thiết kế khi xây trọn gói: Khách hàng khi xây dựng trọn gói cùng Việt Quang Group sẽ được miễn phí 100% hồ sơ thiết kế, bao gồm hồ sơ kiến trúc, hồ sơ kết cấu, hồ sơ điện – nước và phối cảnh 3D mặt tiền. Tất cả được chuẩn bị chuyên nghiệp, đảm bảo tính chính xác, tối ưu chi phí và thuận tiện trong quá trình thi công.

Báo giá rõ ràng – không phát sinh: Việt Quang Group cam kết báo giá rõ ràng, minh bạch và không phát sinh chi phí ngoài hợp đồng, đồng thời đảm bảo khối lượng thi công chính xác và tiến độ thực hiện đúng kế hoạch, mang lại sự an tâm tuyệt đối cho khách hàng trong suốt quá trình xây dựng.

Đội ngũ kỹ sư – kiến trúc sư hơn 15 năm kinh nghiệm: Mỗi công trình của Việt Quang Group đều được triển khai bởi đội ngũ kỹ sư, kiến trúc sư và thợ lành nghề với hơn 15 năm kinh nghiệm, giám sát liên tục trong suốt quá trình thi công và thực hiện đúng quy trình tiêu chuẩn, đảm bảo chất lượng hoàn thiện cao nhất.

Bảo hành, bảo trì lâu dài: Việt Quang Group cung cấp chính sách bảo hành và bảo trì đầy đủ, bao gồm bảo hành kết cấu 5 năm, bảo hành hoàn thiện 1 năm, đồng thời hỗ trợ bảo trì lâu dài, giúp khách hàng hoàn toàn yên tâm khi sử dụng công trình.
Nhà thầu xây dựng uy tín chất lượng tại HCM

Nhà thầu xây dựng uy tín chất lượng tại HCM

Với thiết kế tối ưu, mặt tiền sang trọng và công năng đầy đủ, mẫu nhà phố 3 tầng 4x14m phong cách tân cổ điển không chỉ giúp gia đình bạn sở hữu không gian sống đẳng cấp mà còn nâng tầm giá trị căn nhà theo thời gian.

Nếu bạn đang tìm kiếm một mẫu thiết kế sang trọng, tinh tế, bền vững thì đây chính là lựa chọn lý tưởng. Đừng ngần ngại liên hệ Việt Quang Group để được tư vấn miễn phí, nhận báo giá chi tiết và sở hữu mẫu nhà đẹp theo phong cách riêng của bạn.

Từ khóa: xây nhà | gia xay dung | đơn giá xây thô | sua nha | giá xây thô | cải tạo nâng tầng | sửa nhà đẹp | đơn giá xây nhà cấp 4 | sửa nhà chung cư cũ | giá sửa nhà xưởng | cải tạo nhà cấp 4

Bài viết liên quan

Bình luận

Email của bạn sẽ không được hiển thị công khai. Các trường bắt buộc được đánh dấu *

Bình luận

Họ tên *

Điện thoại

KHUYẾN MÃI

Chương trình khuyến mại khi kí hợp đồng xây nhà, sửa nhà năm 2026

TIỆN ÍCH

Khách hàng đánh giá

  • Bàn giao siêu phẩm nhà phố tân cổ điển cho gia đình chị Thúy

    Bàn giao siêu phẩm nhà phố tân cổ điển cho gia đình chị Thúy

  • Tổ ấm đầu tiên của đôi vợ chống trẻ có gì? Chất lượng thi công xây dựng ra sao?

    Tổ ấm đầu tiên của đôi vợ chống trẻ có gì? Chất lượng thi công xây dựng ra sao?

  • “Nhanh – Gọn – Lẹ” Anh Minh đánh giá cao chất lượng thi công của Việt Quang Group

    “Nhanh – Gọn – Lẹ” Anh Minh đánh giá cao chất lượng thi công của Việt Quang Group

  • Bàn giao nhà phố 1 trệt 3 lầu chú Liệt đánh giá chất lượng thi công ra sao?

    Bàn giao nhà phố 1 trệt 3 lầu chú Liệt đánh giá chất lượng thi công ra sao?

  • 1 năm sau bàn giao cô Nga nói gì về Việt Quang Group

    1 năm sau bàn giao cô Nga nói gì về Việt Quang Group

  • An dưỡng tuổi già với ngôi nhà 1 trệt 2 lầu cùng gia đình Cô Nga tại Tây Ninh

    An dưỡng tuổi già với ngôi nhà 1 trệt 2 lầu cùng gia đình Cô Nga tại Tây Ninh

  • Lần đầu xây nhà vợ chồng Anh Hào chị Quyên đánh giá Việt Quang Group như thế nào?

    Lần đầu xây nhà vợ chồng Anh Hào chị Quyên đánh giá Việt Quang Group như thế nào?

  • “Tuyệt vời” mỹ từ anh Cảnh dành cho Việt Quang Group

    “Tuyệt vời” mỹ từ anh Cảnh dành cho Việt Quang Group

  • Chị Thơm nói gì về siêu phẩm nhà phố dịch vụ 3 tầng tum sân thượng?

    Chị Thơm nói gì về siêu phẩm nhà phố dịch vụ 3 tầng tum sân thượng?

  • Ngày bàn giao – Khẳng định năng lực thi công của Việt Quang Group

    Ngày bàn giao – Khẳng định năng lực thi công của Việt Quang Group

  • 9.5/10 điểm hài lòng – Niềm vui trọn vẹn của anh Ty trong ngày nhận nhà mới

    9.5/10 điểm hài lòng – Niềm vui trọn vẹn của anh Ty trong ngày nhận nhà mới

  • Nụ cười của anh Hùng là thành quả lớn nhất cho năng lực thi công của Việt Quang Group

    Nụ cười của anh Hùng là thành quả lớn nhất cho năng lực thi công của Việt Quang Group

  • Anh Sơn quận 12 nói gì về chất lượng thi công xây nhà trọn gói của Việt Quang Group?

    Anh Sơn quận 12 nói gì về chất lượng thi công xây nhà trọn gói của Việt Quang Group?

  • Nhận nhà mới chị Trang Bình Thạnh nói gì về chất lượng thi công của Việt Quang Group

    Nhận nhà mới chị Trang Bình Thạnh nói gì về chất lượng thi công của Việt Quang Group

  • Vì sao anh Đạo tin chọn Việt Quang Group sửa chữa nhà?

    Vì sao anh Đạo tin chọn Việt Quang Group sửa chữa nhà?

  • Sửa chữa nhà phố | Anh Thắng nói gì về chất lượng thi công của đội ngũ Việt Quang Group?

    Sửa chữa nhà phố | Anh Thắng nói gì về chất lượng thi công của đội ngũ Việt Quang Group?

  • Nhận nhà 1 trệt 2 lầu sau sửa chữa trọn gói chị Điệp nói gì về chất lượng thi công?

    Nhận nhà 1 trệt 2 lầu sau sửa chữa trọn gói chị Điệp nói gì về chất lượng thi công?

  • “Nhanh – Đúng tiến độ” chị Thư đánh giá 10/10 cho chất lượng thi công Việt Quang Group

    “Nhanh – Đúng tiến độ” chị Thư đánh giá 10/10 cho chất lượng thi công Việt Quang Group

  • Trọn niềm tin, trao nụ cười – Chị Liên hài lòng và cảm ơn đội ngũ Việt Quang Group

    Trọn niềm tin, trao nụ cười – Chị Liên hài lòng và cảm ơn đội ngũ Việt Quang Group

  • Sửa chữa nhà phố | Chị Kiều đánh giá chất lượng thi công của Việt Quang Group như thế nào?

    Sửa chữa nhà phố | Chị Kiều đánh giá chất lượng thi công của Việt Quang Group như thế nào?

  • Anh Mông ngụ Tây Ninh dành 9/10 điểm cho chất lượng thi công của đội ngũ Việt Quang Group

    Anh Mông ngụ Tây Ninh dành 9/10 điểm cho chất lượng thi công của đội ngũ Việt Quang Group

  • Cảm nghĩ của anh Bảo khi Việt Quang Group bàn giao nhà sau chửa chữa?

    Cảm nghĩ của anh Bảo khi Việt Quang Group bàn giao nhà sau chửa chữa?

  • Chủ công ty nước uống tinh khiết Sài Gòn nói gì về chất lượng công trình sau sửa chữa trọn gói?

    Chủ công ty nước uống tinh khiết Sài Gòn nói gì về chất lượng công trình sau sửa chữa trọn gói?

  • Ngôi nhà “lột xác ngoạn mục” Anh Nghi dành bao nhiêu điểm cho Việt Quang Group?

    Ngôi nhà “lột xác ngoạn mục” Anh Nghi dành bao nhiêu điểm cho Việt Quang Group?

  • Nhận nhà mới Anh Phúc đánh giá chất lượng thi công của Việt Quang Group như thế nào?

    Nhận nhà mới Anh Phúc đánh giá chất lượng thi công của Việt Quang Group như thế nào?

  • Nhận xét trực tiếp từ chị An chủ nhân ngôi nhà 1 trệt 1 lửng 2 lầu tum sân thượng phường Tân Quý

    Nhận xét trực tiếp từ chị An chủ nhân ngôi nhà 1 trệt 1 lửng 2 lầu tum sân thượng phường Tân Quý

  • 60 ngày lột xác ngôi nhà 3 tầng tum sân thượng cùng Việt Quang Group

    60 ngày lột xác ngôi nhà 3 tầng tum sân thượng cùng Việt Quang Group

  • Anh An có cảm nhận gì khi nhận ngôi nhà 1 trệt 2 lầu tum sân thượng do Việt Quang xây dựng

    Anh An có cảm nhận gì khi nhận ngôi nhà 1 trệt 2 lầu tum sân thượng do Việt Quang xây dựng

  • Sửa nhà cùng Việt Quang | Anh Thịnh đánh giá như thế nào?

    Sửa nhà cùng Việt Quang | Anh Thịnh đánh giá như thế nào?

  • Lắng nghe ý kiến đánh giá từ gia đình anh Hân về công tác thi công xây dựng

    Lắng nghe ý kiến đánh giá từ gia đình anh Hân về công tác thi công xây dựng

  • Những ý kiến của cô Cúc khi sử dụng dịch vụ sửa nhà trọn gói của Việt Quang Group

    Những ý kiến của cô Cúc khi sử dụng dịch vụ sửa nhà trọn gói của Việt Quang Group

  • Bàn giao nhà phố sửa chữa trọn gói, Anh Dỹ nói gì về đội ngũ Việt Quang Group

    Bàn giao nhà phố sửa chữa trọn gói, Anh Dỹ nói gì về đội ngũ Việt Quang Group

  • Bàn giao nhà | Chị Triết nói gì về chất lượng thi công của Việt Quang Group

    Bàn giao nhà | Chị Triết nói gì về chất lượng thi công của Việt Quang Group

  • Review nhà | Không gian nghỉ dưỡng giữa lòng thành phố

    Review nhà | Không gian nghỉ dưỡng giữa lòng thành phố

  • Bàn giao nhà phố | Anh Tín nói gì về đội ngũ Việt Quang Group

    Bàn giao nhà phố | Anh Tín nói gì về đội ngũ Việt Quang Group

  • Anh Tiến Quận 12 đánh giá như thế nào về Việt Quang Group sau quá trình thi công xây dựng ngôi nhà 3 tầng

    Anh Tiến Quận 12 đánh giá như thế nào về Việt Quang Group sau quá trình thi công xây dựng ngôi nhà 3 tầng

  • Bác sĩ Khôi chia sẻ lý do chọn Việt Quang Group khi lần đầu xây nhà

    Bác sĩ Khôi chia sẻ lý do chọn Việt Quang Group khi lần đầu xây nhà

  • Những chi sẻ chân thực của Cô Thông Hóc Môn khi nhận nhà phố liền kề 3 tầng

    Những chi sẻ chân thực của Cô Thông Hóc Môn khi nhận nhà phố liền kề 3 tầng

  • Trao tay tổ ấm | Anh Lâm Bình Tân đánh giá như thế nào về chất lượng thi công

    Trao tay tổ ấm | Anh Lâm Bình Tân đánh giá như thế nào về chất lượng thi công

  • Nhân đôi niềm vui ngôi nhà thứ 2 Việt Quang Group được đồng hành cùng anh Hải Tp. Thủ Đức

    Nhân đôi niềm vui ngôi nhà thứ 2 Việt Quang Group được đồng hành cùng anh Hải Tp. Thủ Đức

  • Bàn giao nhà phố | Gia chủ người Hoa đánh giá như thế nào về đội ngũ Việt Quang Group

    Bàn giao nhà phố | Gia chủ người Hoa đánh giá như thế nào về đội ngũ Việt Quang Group

  • Sửa chữa nhà phố | Anh Bảo hoàn toàn tin tưởng Việt Quang Group

    Sửa chữa nhà phố | Anh Bảo hoàn toàn tin tưởng Việt Quang Group

  • 9.5/10 số điểm gần như tuyệt đối anh Trung dành cho Việt Quang Group sau khi hoàn thành cải tạo sửa chữa nhà

    9.5/10 số điểm gần như tuyệt đối anh Trung dành cho Việt Quang Group sau khi hoàn thành cải tạo sửa chữa nhà

  • Bàn giao nhà phố | Cô Phụng nói gì về đội ngũ Việt Quang Group?

    Bàn giao nhà phố | Cô Phụng nói gì về đội ngũ Việt Quang Group?

  • Anh Hùng nói gì về Việt Quang sau khi nhận bàn giao nhà phố 4 tầng?

    Anh Hùng nói gì về Việt Quang sau khi nhận bàn giao nhà phố 4 tầng?

  • Bản tin đánh giá | Chị Phượng Thủ Đức nói gì về chất lượng thi công sửa chữa của Việt Quang Group?

    Bản tin đánh giá | Chị Phượng Thủ Đức nói gì về chất lượng thi công sửa chữa của Việt Quang Group?

  • Chị Châu đánh giá cao chất lượng, thẩm mỹ ngôi nhà sau khi được Việt Quang Group thi công sửa chữa

    Chị Châu đánh giá cao chất lượng, thẩm mỹ ngôi nhà sau khi được Việt Quang Group thi công sửa chữa

  • Sửa nhà cho Kỹ sư xây dựng | Việt Quang Group nhận được gì?

    Sửa nhà cho Kỹ sư xây dựng | Việt Quang Group nhận được gì?

  • Bàn giao nhà | Đánh giá của Chị Châu về công trình sửa chữa?

    Bàn giao nhà | Đánh giá của Chị Châu về công trình sửa chữa?

  • Xây nhà ở tỉnh Long An | Anh Hoàng đánh giá Việt Quang như thế nào?

    Xây nhà ở tỉnh Long An | Anh Hoàng đánh giá Việt Quang như thế nào?

  • 14 ngày lột xác nhà phố | Anh Hoàn đánh giá như thế nào?

    14 ngày lột xác nhà phố | Anh Hoàn đánh giá như thế nào?

  • Khách hàng Cũ – Công trình mới | Chia sẻ của Anh Quang sau 2 lần hợp tác cùng Việt Quang Group

    Khách hàng Cũ – Công trình mới | Chia sẻ của Anh Quang sau 2 lần hợp tác cùng Việt Quang Group

  • Cảm nghĩ của Chủ đầu tư sau khi nhận bàn giao nhà là gì?

    Cảm nghĩ của Chủ đầu tư sau khi nhận bàn giao nhà là gì?

  • Việt Quang Group có “được lòng” Anh Trường sau khi sửa nhà?

    Việt Quang Group có “được lòng” Anh Trường sau khi sửa nhà?

  • Ý kiến đánh giá của gia đình Anh Sơn đối với Việt Quang Group

    Ý kiến đánh giá của gia đình Anh Sơn đối với Việt Quang Group

  • Việt Quang Group trông như thế nào “trong mắt” Chú Đàn?

    Việt Quang Group trông như thế nào “trong mắt” Chú Đàn?

  • Bàn giao nhà lô góc 2 mặt tiền | Anh Tiến đánh giá như thế nào?

    Bàn giao nhà lô góc 2 mặt tiền | Anh Tiến đánh giá như thế nào?

  • Nâng cấp hàng rào nhà Anh Nhựt – Việt Quang nhận được gì?

    Nâng cấp hàng rào nhà Anh Nhựt – Việt Quang nhận được gì?

  • Gia đình Anh Thành nói gì về ngôi nhà do Việt Quang Group xây nhà trọn gói?

    Gia đình Anh Thành nói gì về ngôi nhà do Việt Quang Group xây nhà trọn gói?

  • Thay đổi diện mạo ngôi nhà của “Đại gia gỗ” và cái kết

    Thay đổi diện mạo ngôi nhà của “Đại gia gỗ” và cái kết

  • Đánh giá của Chị Ly về ngôi nhà do Việt Quang Group xây dựng

    Đánh giá của Chị Ly về ngôi nhà do Việt Quang Group xây dựng

  • Cảm nghĩ của Anh Nam khi nhận bàn giao nhà là gì?

    Cảm nghĩ của Anh Nam khi nhận bàn giao nhà là gì?

  • Ký hợp đồng sau 24h làm việc và cái kết

    Ký hợp đồng sau 24h làm việc và cái kết

  • Nhận nhà mới | Anh Đức cảm thấy như thế nào?

    Nhận nhà mới | Anh Đức cảm thấy như thế nào?

  • Bàn giao nhà | Chị Nguyên đánh giá Việt Quang Group thế nào?

    Bàn giao nhà | Chị Nguyên đánh giá Việt Quang Group thế nào?

  • Đánh giá của Anh Minh về công trình nhà phố 5 tầng

    Đánh giá của Anh Minh về công trình nhà phố 5 tầng

  • Xây nhà cùng Việt Quang Group | Gia đình Anh Thiện nghĩ gì?

    Xây nhà cùng Việt Quang Group | Gia đình Anh Thiện nghĩ gì?

  • 90 ngày cải tạo nhà phố | Anh Lộc nói gì về Việt Quang Group

    90 ngày cải tạo nhà phố | Anh Lộc nói gì về Việt Quang Group

  • Đánh giá thực tế từ chủ đầu tư Chị Lan ở Tiền Giang

    Đánh giá thực tế từ chủ đầu tư Chị Lan ở Tiền Giang

  • Nhận xét của Chị Khanh khi làm việc cùng Việt Quang Group

    Nhận xét của Chị Khanh khi làm việc cùng Việt Quang Group

  • Bàn giao nhà phố | Nhà phố 3 tầng 3x12m Anh Cảnh ở Quận 1

    Bàn giao nhà phố | Nhà phố 3 tầng 3x12m Anh Cảnh ở Quận 1

  • Kết quả sau 90 ngày thi công trọn gói nhà Chị Hà là gì?

    Kết quả sau 90 ngày thi công trọn gói nhà Chị Hà là gì?

  • Đánh giá của Cô Thủy về công trình và Việt Quang Group

    Đánh giá của Cô Thủy về công trình và Việt Quang Group

  • Bàn giao nhà phố tổ hợp không gian 3 tầng nhà Chị Châu

    Bàn giao nhà phố tổ hợp không gian 3 tầng nhà Chị Châu

  • Bàn giao nhà phố 6 tầng 7x12m để kinh doanh phòng trọ

    Bàn giao nhà phố 6 tầng 7x12m để kinh doanh phòng trọ

  • Bàn giao nhà phố 3 tầng nở hậu 3x23m Anh Duy ở Quận 12

    Bàn giao nhà phố 3 tầng nở hậu 3x23m Anh Duy ở Quận 12

  • Bàn giao nhà phố 3 tầng 4x7m tọa lạc giữa lòng Sài Gòn hoa lệ

    Bàn giao nhà phố 3 tầng 4x7m tọa lạc giữa lòng Sài Gòn hoa lệ

  • Biến nhà 2 tầng thành nhà 4 tầng chỉ trong 90 ngày

    Biến nhà 2 tầng thành nhà 4 tầng chỉ trong 90 ngày

  • Bàn giao nhà phố | Câu chuyện bát bún bò và cái kết

    Bàn giao nhà phố | Câu chuyện bát bún bò và cái kết

  • Lột xác nhà phố 3 tầng – 90 ngày cùng Việt Quang Group

    Lột xác nhà phố 3 tầng – 90 ngày cùng Việt Quang Group

  • Bàn giao công trình sửa nhà 3 tầng Anh Quang Thủ Đức

    Bàn giao công trình sửa nhà 3 tầng Anh Quang Thủ Đức

  • Đánh giá công trình nhà Anh Long quy mô 3 tầng sân thượng

    Đánh giá công trình nhà Anh Long quy mô 3 tầng sân thượng

  • Khám phá nhà trọ 1 trệt 2 lầu 4,5x14m Chị Châu ở Thủ Đức

    Khám phá nhà trọ 1 trệt 2 lầu 4,5x14m Chị Châu ở Thủ Đức

  • Tham quan mẫu nhà phố 2 tầng cho gia đình Chú Phú Gò Vấp

    Tham quan mẫu nhà phố 2 tầng cho gia đình Chú Phú Gò Vấp

  • Kết quả sau khi bàn giao cải tạo căn hộ chung cư là gì?

    Kết quả sau khi bàn giao cải tạo căn hộ chung cư là gì?

  • Bàn giao nhà phố | Chủ nhà thử lòng & Cái kết trên cả tuyệt vời

    Bàn giao nhà phố | Chủ nhà thử lòng & Cái kết trên cả tuyệt vời

  • Đánh giá của Anh Hải về quá trình thi công cải tạo nhà

    Đánh giá của Anh Hải về quá trình thi công cải tạo nhà

  • Việt Quang Group nhận “Cơn mưa” lời khen từ Chú Phú. Tại sao?

    Việt Quang Group nhận “Cơn mưa” lời khen từ Chú Phú. Tại sao?

  • Chị Bảo nghĩ gì sau khi nhận bàn giao nhà?

    Chị Bảo nghĩ gì sau khi nhận bàn giao nhà?

  • Anh Hiệp đánh giá Việt Quang Group như thế nào?

    Anh Hiệp đánh giá Việt Quang Group như thế nào?

  • Cảm nhận của Chị Huệ khi nhận bàn giao nhà 3 tầng là gì?

    Cảm nhận của Chị Huệ khi nhận bàn giao nhà 3 tầng là gì?

  • Khám phá ngay căn biệt thự bạc tỷ quận Tân Bình

    Khám phá ngay căn biệt thự bạc tỷ quận Tân Bình

  • Kết quả nhận được sau 90 ngày thi công xây nhà 3 tầng là gì?

    Kết quả nhận được sau 90 ngày thi công xây nhà 3 tầng là gì?

  • Cổ điển hay hiện đại? Khám phá nhà 4 tầng tân cổ điển ở Quận 7

    Cổ điển hay hiện đại? Khám phá nhà 4 tầng tân cổ điển ở Quận 7

  • Chủ đầu tư nghĩ gì khi nhận bàn giao nhà 3 tầng ở Quận 1?

    Chủ đầu tư nghĩ gì khi nhận bàn giao nhà 3 tầng ở Quận 1?

  • Khám phá công năng nhà 4 tầng 2 mặt tiền trong hẻm Quận 3

    Khám phá công năng nhà 4 tầng 2 mặt tiền trong hẻm Quận 3

  • Ý kiến đánh giá của Chị Hà Anh sau khi cải tạo tiệm bánh ở Quận 2

    Ý kiến đánh giá của Chị Hà Anh sau khi cải tạo tiệm bánh ở Quận 2

  • Việt Kiều Mỹ nói gì về ngôi nhà sau khi nhận bàn giao nhà 3 tầng?

    Việt Kiều Mỹ nói gì về ngôi nhà sau khi nhận bàn giao nhà 3 tầng?

  • ?/10 ĐIỂM – Đánh giá của Anh Vũ về quá trình xây nhà 3 tầng ở Gò Vấp

    ?/10 ĐIỂM – Đánh giá của Anh Vũ về quá trình xây nhà 3 tầng ở Gò Vấp

  • Đánh giá công tâm về công trình sửa nhà 4 tầng ở Quận 10

    Đánh giá công tâm về công trình sửa nhà 4 tầng ở Quận 10

  • Bàn giao nhà 3 tầng cho chủ đầu tư là “FAN RUỘT APPLE”

    Bàn giao nhà 3 tầng cho chủ đầu tư là “FAN RUỘT APPLE”

  • Bàn giao công trình sửa chữa TTTM Terra Royal

    Bàn giao công trình sửa chữa TTTM Terra Royal

  • Tham quan mẫu nhà “Độc lạ” – Bàn giao nhà 3 tầng sân thượng 5x15m nhà Anh Long ở Thủ Đức

    Tham quan mẫu nhà “Độc lạ” – Bàn giao nhà 3 tầng sân thượng 5x15m nhà Anh Long ở Thủ Đức

  • Tham quan mẫu nhà 3 tầng hình chữ L 4x17m ở Quận 12

    Tham quan mẫu nhà 3 tầng hình chữ L 4x17m ở Quận 12

  • Anh Vĩnh suy nghĩ thế nào về ngôi nhà nhận bàn giao?

    Anh Vĩnh suy nghĩ thế nào về ngôi nhà nhận bàn giao?

  • Khám phá mẫu nhà độc đáo – Nhà 3 tầng 2 mặt tiền 5x18m Chú Ba ở Quận Bình Tân

    Khám phá mẫu nhà độc đáo – Nhà 3 tầng 2 mặt tiền 5x18m Chú Ba ở Quận Bình Tân

  • Tham quan ngôi nhà phố 4 tầng rưỡi diện tích 6x16m với nội thất “Xịn Xò”, có thang máy, có phòng Karaoke

    Tham quan ngôi nhà phố 4 tầng rưỡi diện tích 6x16m với nội thất “Xịn Xò”, có thang máy, có phòng Karaoke

  • Tham quan thi công xây dựng thô nhà phố 2 căn liền kề 2 tầng nhà chú Đuổi ở Quận 9

    Tham quan thi công xây dựng thô nhà phố 2 căn liền kề 2 tầng nhà chú Đuổi ở Quận 9

  • Sau khi nhận bàn giao 3 căn nhà liền kề anh Nhân nhận xét như thế nào về quá trình thi công của Việt Quang Group ? Cùng tham quan và lắng nghe gia chủ đánh về Việt Quang Group nhé!

    Sau khi nhận bàn giao 3 căn nhà liền kề anh Nhân nhận xét như thế nào về quá trình thi công của Việt Quang Group ? Cùng tham quan và lắng nghe gia chủ đánh về Việt Quang Group nhé!

  • Trao tay ngay nhà 3 tầng nhà anh Hiệp ở thành phố Thủ Đức và đánh giá của chủ đầu tư về công tác xây dựng nhà của đội ngũ Việt Quang Group

    Trao tay ngay nhà 3 tầng nhà anh Hiệp ở thành phố Thủ Đức và đánh giá của chủ đầu tư về công tác xây dựng nhà của đội ngũ Việt Quang Group

  • Đánh giá của chú Vinh thuyền phó Tàu Viễn Dương về chất lượng thi công xây dựng nhà phố 3 tầng của Việt Quang Group cho gia đình chú

    Đánh giá của chú Vinh thuyền phó Tàu Viễn Dương về chất lượng thi công xây dựng nhà phố 3 tầng của Việt Quang Group cho gia đình chú

  • Đánh giá của chú Bảo về công tác xây dựng ngôi biệt thự tân cổ điển 4 tầng 8x24m ở Quận 7

    Đánh giá của chú Bảo về công tác xây dựng ngôi biệt thự tân cổ điển 4 tầng 8x24m ở Quận 7

  • Toàn cảnh nhà phố 3 tầng nhà anh Nhân và những đánh giá của anh về công tác thi công chất lượng công trình của Việt Quang Group

    Toàn cảnh nhà phố 3 tầng nhà anh Nhân và những đánh giá của anh về công tác thi công chất lượng công trình của Việt Quang Group

  • Đánh giá sửa nhà trọn gói tầng trệt Quận 1 của chị Yến

    Đánh giá sửa nhà trọn gói tầng trệt Quận 1 của chị Yến

  • Đánh giá của chị Hiền về chất lượng công trình và công tác thi công xây dựng nhà phố 3 tầng của đội ngũ Việt Quang Group

    Đánh giá của chị Hiền về chất lượng công trình và công tác thi công xây dựng nhà phố 3 tầng của đội ngũ Việt Quang Group

  • Sửa chữa siêu biệt thự đẹp lộng lẫy của gia đình anh Tùng chị Oanh ở Quận 7 và những đánh giá về đội ngũ Việt Quang Group

    Sửa chữa siêu biệt thự đẹp lộng lẫy của gia đình anh Tùng chị Oanh ở Quận 7 và những đánh giá về đội ngũ Việt Quang Group

  • Đánh giá của anh Vũ về công tác thi công xây dựng ngôi nhà phố 6 tầng 4x22m của Việt Quang Group cho gia đình anh

    Đánh giá của anh Vũ về công tác thi công xây dựng ngôi nhà phố 6 tầng 4x22m của Việt Quang Group cho gia đình anh

  • Cô Hòa xây nhà ở Gò Vấp nhận xét Việt Quang Group là Công ty Có Tâm – Có Tầm – Có Đạo Đức – Tay Nghề Cao

    Cô Hòa xây nhà ở Gò Vấp nhận xét Việt Quang Group là Công ty Có Tâm – Có Tầm – Có Đạo Đức – Tay Nghề Cao

  • Anh Việt ở Hóc Môn rất hài lòng về ngôi nhà phố 4 tầng 5x23m do Việt Quang Group xây dựng

    Anh Việt ở Hóc Môn rất hài lòng về ngôi nhà phố 4 tầng 5x23m do Việt Quang Group xây dựng

  • Anh Sĩ ở Tân Phú nhận xét về quá trình thi công xây dựng nhà của Việt Quang Group

    Anh Sĩ ở Tân Phú nhận xét về quá trình thi công xây dựng nhà của Việt Quang Group

  • Xây nhà trọn gói 4 tầng 5x20m của Anh Luân + Chị Ý Vân tại Bình Tân

    Xây nhà trọn gói 4 tầng 5x20m của Anh Luân + Chị Ý Vân tại Bình Tân

  • Đánh giá của Anh Sơn ở quận 12 về dịch vụ xây nhà trọn gói của Việt Quang Group

    Đánh giá của Anh Sơn ở quận 12 về dịch vụ xây nhà trọn gói của Việt Quang Group

  • Nhận xét của Anh Hưng tại Hóc Môn về dịch vụ xây nhà của Việt Quang Group

    Nhận xét của Anh Hưng tại Hóc Môn về dịch vụ xây nhà của Việt Quang Group

  • Đánh giá của gia đình anh Nguyên ở Quận Tân Phú về đội ngũ Việt Quang Group xây dựng nhà 4 tầng cho gia đình anh

    Đánh giá của gia đình anh Nguyên ở Quận Tân Phú về đội ngũ Việt Quang Group xây dựng nhà 4 tầng cho gia đình anh

  • Đánh giá của vợ chồng anh Khôi về quá trình sửa chữa cải tạo nhà ngôi nhà phố 2 tầng ở Quận 5 cho gia đình anh

    Đánh giá của vợ chồng anh Khôi về quá trình sửa chữa cải tạo nhà ngôi nhà phố 2 tầng ở Quận 5 cho gia đình anh

  • Thay đổi diện mạo công năng ngôi nhà của anh Lực và những đánh giá của anh về công tác sửa chữa cải tạo nhà cho gia đình anh ở Quận 12

    Thay đổi diện mạo công năng ngôi nhà của anh Lực và những đánh giá của anh về công tác sửa chữa cải tạo nhà cho gia đình anh ở Quận 12

  • Chị Thúy tại Thủ Đức đánh giá về dịch vụ xây nhà của Việt Quang Group

    Chị Thúy tại Thủ Đức đánh giá về dịch vụ xây nhà của Việt Quang Group

  • Anh Quang tại TP Thủ Đức nhận xét về dịch vụ xây nhà trọn gói của Việt Quang Group

    Anh Quang tại TP Thủ Đức nhận xét về dịch vụ xây nhà trọn gói của Việt Quang Group

  • Những chia sẻ của chú Lương về dịch vụ xây nhà của Việt Quang Group

    Những chia sẻ của chú Lương về dịch vụ xây nhà của Việt Quang Group

  • Đánh giá của anh Minh tại TP Thủ Đức về dịch vụ xây nhà trọn gói của Việt Quang

    Đánh giá của anh Minh tại TP Thủ Đức về dịch vụ xây nhà trọn gói của Việt Quang

  • Đánh giá của anh Phương về công tác sửa chữa cải tạo nhà phố 2 tầng của Việt Quang Group cho gia đình anh ở Quận 10

    Đánh giá của anh Phương về công tác sửa chữa cải tạo nhà phố 2 tầng của Việt Quang Group cho gia đình anh ở Quận 10

  • Đánh giá của chị Hiệp về công tác xây dựng nhà phố 4 tầng cho gia đình chị ở Quận 12

    Đánh giá của chị Hiệp về công tác xây dựng nhà phố 4 tầng cho gia đình chị ở Quận 12

  • Đánh giá của chị Ngọc về công tác xây dựng nhà phố 4 tầng cho gia đình chị ở Bình Dương

    Đánh giá của chị Ngọc về công tác xây dựng nhà phố 4 tầng cho gia đình chị ở Bình Dương

  • Đánh giá của anh Định về công tác xây dựng nhà cho gia đình anh ở Quận Bình Thạnh

    Đánh giá của anh Định về công tác xây dựng nhà cho gia đình anh ở Quận Bình Thạnh

  • Đánh giá dịch vụ sửa nhà nâng tầng của anh Duy quận Tân Bình

    Đánh giá dịch vụ sửa nhà nâng tầng của anh Duy quận Tân Bình

  • Đánh giá của anh Hiệp Thủ Đức về quá trình thi công xây dựng nhà mới của Việt Quang

    Đánh giá của anh Hiệp Thủ Đức về quá trình thi công xây dựng nhà mới của Việt Quang

  • Ghé thăm nhà Anh Lộc khi đang xây dựng phần thô huyện Bình Chánh

    Ghé thăm nhà Anh Lộc khi đang xây dựng phần thô huyện Bình Chánh

  • Bàn giao ngôi nhà phố 4 tầng xây trọn gói tại Tân Bình

    Bàn giao ngôi nhà phố 4 tầng xây trọn gói tại Tân Bình

  • Đánh giá của chị Nhung về công tác sửa chữa cải tạo nhà phố 4 tầng ở Quận 12 của Việt Quang Group

    Đánh giá của chị Nhung về công tác sửa chữa cải tạo nhà phố 4 tầng ở Quận 12 của Việt Quang Group

  • Đánh giá của anh Thắng quận 9 dành cho Việt Quang sau thi công xây nhà mới

    Đánh giá của anh Thắng quận 9 dành cho Việt Quang sau thi công xây nhà mới

  • Việt Quang Group đơn vị thiết kế xây dựng nhà ở chuyên nghiệp, uy tín

    Việt Quang Group đơn vị thiết kế xây dựng nhà ở chuyên nghiệp, uy tín

  • Đánh giá của Chú Lương tại Bình chánh về Việt Quang Group

    Đánh giá của Chú Lương tại Bình chánh về Việt Quang Group

  • Đánh giá của anh Việt tại Gò Vấp về dịch vụ sửa nhà trọn gói của Việt Quang

    Đánh giá của anh Việt tại Gò Vấp về dịch vụ sửa nhà trọn gói của Việt Quang

  • Đánh giá về Việt Quang Group của anh Hải, Bình Tân

    Đánh giá về Việt Quang Group của anh Hải, Bình Tân

  • Việt Quang Group như thế nào trong mắt nhân sự và Khách Hàng

    Việt Quang Group như thế nào trong mắt nhân sự và Khách Hàng

  • Bảo hành công trình sau thi công nhà chị Châu quận 12

    Bảo hành công trình sau thi công nhà chị Châu quận 12

  • Video hoàn thiện nhà phố 3 tầng của gia đình anh Tường do Việt Quang xây dựng

    Video hoàn thiện nhà phố 3 tầng của gia đình anh Tường do Việt Quang xây dựng

  • Nhận xét của anh Vũ về dịch xây nhà trọn gói tại quận 7 của Việt Quang

    Nhận xét của anh Vũ về dịch xây nhà trọn gói tại quận 7 của Việt Quang

  • Anh Thanh – Gia chủ ngôi nhà phố 5 tầng tại quận 4 nhận xét

    Anh Thanh – Gia chủ ngôi nhà phố 5 tầng tại quận 4 nhận xét

  • Chị Vân đánh giá dịch vụ xây nhà trọn gói quận Tân Bình của Việt Quang

    Chị Vân đánh giá dịch vụ xây nhà trọn gói quận Tân Bình của Việt Quang

  • Nhận xét của chú Khẩn về Việt Quang sau khi đã xây nhà phố 4 tầng

    Nhận xét của chú Khẩn về Việt Quang sau khi đã xây nhà phố 4 tầng

  • Đánh giá của anh Thường tại quận Tân Bình về dịch vụ xây nhà của Việt Quang

    Đánh giá của anh Thường tại quận Tân Bình về dịch vụ xây nhà của Việt Quang

  • Đánh giá của anh Liêm quận Tân Phú về dịch vụ xây nhà của Việt Quang

    Đánh giá của anh Liêm quận Tân Phú về dịch vụ xây nhà của Việt Quang

  • Đánh giá của anh Vĩnh Quận Thủ Đức về dịch vụ xây nhà

    Đánh giá của anh Vĩnh Quận Thủ Đức về dịch vụ xây nhà

  • Đánh giá dịch vụ thi công sửa nhà Anh Nam quận 8, TP HCM

    Đánh giá dịch vụ thi công sửa nhà Anh Nam quận 8, TP HCM

  • Video review sửa chữa nhà cô Lộc quận 12, Tp HCM

    Video review sửa chữa nhà cô Lộc quận 12, Tp HCM

  • Công Ty Sửa Nhà Tại Sài Gòn

    Công Ty Sửa Nhà Tại Sài Gòn

  • Anh Long đánh giá về dịch vụ sửa nhà quận Bình Thạnh

    Anh Long đánh giá về dịch vụ sửa nhà quận Bình Thạnh

  • Đánh giá của Chú Thanh – Phú Nhuận về dịch vụ sửa nhà của Việt Quang

    Đánh giá của Chú Thanh – Phú Nhuận về dịch vụ sửa nhà của Việt Quang

  • Đánh giá của anh Bảo tại Nhà Bè về quá trình sửa nhà

    Đánh giá của anh Bảo tại Nhà Bè về quá trình sửa nhà

  • Đánh giá của anh Còn sau 6 năm sử dụng lại dịch vụ sửa nhà trọn gói của Việt Quang Group

    Đánh giá của anh Còn sau 6 năm sử dụng lại dịch vụ sửa nhà trọn gói của Việt Quang Group

  • Đánh giá của anh Trung ở Quận 9 về công tác sửa chữa cải tạo nhà trọn gói cho gia đình anh

    Đánh giá của anh Trung ở Quận 9 về công tác sửa chữa cải tạo nhà trọn gói cho gia đình anh

  • Việt Quang sửa chữa nhà anh Dương Quận 2

    Việt Quang sửa chữa nhà anh Dương Quận 2

  • Anh Long đánh giá dịch vụ sửa chữa nhà trọn gói tại quận 7

    Anh Long đánh giá dịch vụ sửa chữa nhà trọn gói tại quận 7

  • Video đánh giá dịch vụ sửa chữa nhà chị Phương quận 4

    Video đánh giá dịch vụ sửa chữa nhà chị Phương quận 4

  • Video đánh giá dịch sửa chữa nhà anh Long Quận Bình Thạnh

    Video đánh giá dịch sửa chữa nhà anh Long Quận Bình Thạnh

  • Sửa chữa nhà trọn gói nhà anh Thanh Gò Vấp

    Sửa chữa nhà trọn gói nhà anh Thanh Gò Vấp

  • Đánh giá của anh Thế Hệ Quận Gò Vấp về dịch vụ xây nhà trọn gói

    Đánh giá của anh Thế Hệ Quận Gò Vấp về dịch vụ xây nhà trọn gói

  • Đánh giá của nhà chị Uyển quận 5 về dịch vụ sửa nhà của Việt Quang

    Đánh giá của nhà chị Uyển quận 5 về dịch vụ sửa nhà của Việt Quang

  • Đánh giá về chất lượng thi công sửa chữa nhà của gia đình Anh Điền Quận 12

    Đánh giá về chất lượng thi công sửa chữa nhà của gia đình Anh Điền Quận 12

  • Đánh giá của anh sơn về công tác sửa chữa nâng tầng nhà của đội ngũ Việt Quang Group cho gia đình anh ở Quận Tân Bình

    Đánh giá của anh sơn về công tác sửa chữa nâng tầng nhà của đội ngũ Việt Quang Group cho gia đình anh ở Quận Tân Bình

  • Đánh giá của anh Hải về công tác sửa chữa cải tạo nhà của Việt Quang Group

    Đánh giá của anh Hải về công tác sửa chữa cải tạo nhà của Việt Quang Group

  • Chú Tân đánh giá chất lượng thi công nhà mới cho gia đình chú ở quận 10

    Chú Tân đánh giá chất lượng thi công nhà mới cho gia đình chú ở quận 10

  • Đánh giá của chú Bội về công tác thi công xây dựng nhà cho gia đình chú ở Quận Bình Thạnh

    Đánh giá của chú Bội về công tác thi công xây dựng nhà cho gia đình chú ở Quận Bình Thạnh

  • Đánh giá của anh Nhơn về đội ngũ Việt Quang Group sau khi bàn giao ngôi nhà phố 4 tầng tân cổ điển cho gia đình anh

    Đánh giá của anh Nhơn về đội ngũ Việt Quang Group sau khi bàn giao ngôi nhà phố 4 tầng tân cổ điển cho gia đình anh

  • Gia đình anh Công Tân Phú đánh giá chất lượng thi công nhà mới cho gia đình anh

    Gia đình anh Công Tân Phú đánh giá chất lượng thi công nhà mới cho gia đình anh

  • Đánh giá của anh Duẩn về công tác sửa chữa cải tạo nhà cho gia đình anh ở Quận 12

    Đánh giá của anh Duẩn về công tác sửa chữa cải tạo nhà cho gia đình anh ở Quận 12

  • Đánh giá của anh Còn về công tác sửa chữa cải tạo nhà phố của Việt Quang Group cho gia đình anh

    Đánh giá của anh Còn về công tác sửa chữa cải tạo nhà phố của Việt Quang Group cho gia đình anh

  • Đánh giá của vợ chồng anh Cường về công tác thi công sửa chữa cải tạo nhà cho gia đình anh ở Quận 12

    Đánh giá của vợ chồng anh Cường về công tác thi công sửa chữa cải tạo nhà cho gia đình anh ở Quận 12

  • Đánh giá của vợ chồng anh Thanh về công tác thi công sửa chữa nhà cho gia đình anh ở Huyện Hóc Môn

    Đánh giá của vợ chồng anh Thanh về công tác thi công sửa chữa nhà cho gia đình anh ở Huyện Hóc Môn

  • Đánh giá của anh Lâm về quá trình thi công sửa chữa nhà của Việt Quang Group cho gia đình anh ở Quận 12

    Đánh giá của anh Lâm về quá trình thi công sửa chữa nhà của Việt Quang Group cho gia đình anh ở Quận 12

  • Đánh giá của vợ chồng chị Uyên về công tác thi công sửa chữa nhà của Việt Quang Group cho gia đình chị ở Huyện Củ Chi

    Đánh giá của vợ chồng chị Uyên về công tác thi công sửa chữa nhà của Việt Quang Group cho gia đình chị ở Huyện Củ Chi

  • Đánh giá của anh Quốc về công tác sửa chữa cải tạo nhà của đội ngũ Việt Quang Group cho gia đình anh ở Long An

    Đánh giá của anh Quốc về công tác sửa chữa cải tạo nhà của đội ngũ Việt Quang Group cho gia đình anh ở Long An

  • Đánh giá của chị Thủy về công tác sửa chữa cải tạo văn phòng Luật ở Quận 5

    Đánh giá của chị Thủy về công tác sửa chữa cải tạo văn phòng Luật ở Quận 5

  • Đánh giá của anh Quân về quá trình sửa chữa cải tạo nhà của Việt Quang Group cho gia đình anh ở Huyện Nhà Bè

    Đánh giá của anh Quân về quá trình sửa chữa cải tạo nhà của Việt Quang Group cho gia đình anh ở Huyện Nhà Bè

  • Đánh giá của chị Trang về công tác sửa nhà của Việt Quang Group cho gia đình chị ở Quận 7

    Đánh giá của chị Trang về công tác sửa nhà của Việt Quang Group cho gia đình chị ở Quận 7

  • Đánh giá của anh Phong về đội ngũ Việt Quang Group thi công xây dựng nhà phố 3 tầng cho gia đình anh ở TP Thủ Đức

    Đánh giá của anh Phong về đội ngũ Việt Quang Group thi công xây dựng nhà phố 3 tầng cho gia đình anh ở TP Thủ Đức

  • Đánh giá của anh Phong về đội ngũ Việt Quang Group thi công xây dựng nhà phố 3 tầng cho gia đình anh ở Quận Bình Thạnh

    Đánh giá của anh Phong về đội ngũ Việt Quang Group thi công xây dựng nhà phố 3 tầng cho gia đình anh ở Quận Bình Thạnh

  • Đánh giá của chị Hiền về công tác xây dựng nhà 4 tầng cho gia đình chị ở Quận Bình Tân

    Đánh giá của chị Hiền về công tác xây dựng nhà 4 tầng cho gia đình chị ở Quận Bình Tân

  • Đánh giá của chú Thành ở Quận 12 về công tác thi công xây dựng nhà phố 3 tầng cho gia đình chú

    Đánh giá của chú Thành ở Quận 12 về công tác thi công xây dựng nhà phố 3 tầng cho gia đình chú

  • Đánh giá của anh Nhanh về quá trình thi công xây dựng nhà 3 tầng của Việt Quang Group

    Đánh giá của anh Nhanh về quá trình thi công xây dựng nhà 3 tầng của Việt Quang Group

  • Đánh giá của anh Tùng ở TP. Thủ Đức về quá trình thi công xây dựng nhà 1 trệt 1 lửng 2 lầu sân thương của Việt Quang Group cho gia đình anh

    Đánh giá của anh Tùng ở TP. Thủ Đức về quá trình thi công xây dựng nhà 1 trệt 1 lửng 2 lầu sân thương của Việt Quang Group cho gia đình anh

  • Đánh giá của anh Bảo về công tác xây dựng trọn gói nhà phố 3 tầng cho gia đình anh ở Quận Tân Bình

    Đánh giá của anh Bảo về công tác xây dựng trọn gói nhà phố 3 tầng cho gia đình anh ở Quận Tân Bình

  • Gia đình chị Thư nhận xét về chất lượng thi công của Việt Quang Group

    Gia đình chị Thư nhận xét về chất lượng thi công của Việt Quang Group

  • Anh Mạnh Quận 10 đánh giá chất lượng công trình sau thi công sửa chữa

    Anh Mạnh Quận 10 đánh giá chất lượng công trình sau thi công sửa chữa

  • Đánh giá của anh Nho về công tác sửa chữa nhà cho gia đình anh ở Quận 1

    Đánh giá của anh Nho về công tác sửa chữa nhà cho gia đình anh ở Quận 1

  • Đánh giá của anh Mẫn về công tác sửa chữa cải tạo nhà của Việt Quang Group cho gia đình anh ở Quận 12

    Đánh giá của anh Mẫn về công tác sửa chữa cải tạo nhà của Việt Quang Group cho gia đình anh ở Quận 12

  • Đánh giá của chị An về chất lượng công trình và công tác thi công của Việt Quang Group cho gia đình chị ở Quận 7

    Đánh giá của chị An về chất lượng công trình và công tác thi công của Việt Quang Group cho gia đình chị ở Quận 7

  • Đánh giá của chị Trân về công tác sửa chữa cải tạo nhà của đội ngũ Việt Quang Group cho gia đình chị ở Quận 7

    Đánh giá của chị Trân về công tác sửa chữa cải tạo nhà của đội ngũ Việt Quang Group cho gia đình chị ở Quận 7

  • Đánh giá của cô Hường về quá trình sửa chữa cải tạo nhà phố 4 của đội ngũ Việt Quang Group

    Đánh giá của cô Hường về quá trình sửa chữa cải tạo nhà phố 4 của đội ngũ Việt Quang Group

  • Đánh giá của chú Tân ở Quận 10 về quá trình thi công xây dựng nhà phố 4 tầng của Việt Quang Group

    Đánh giá của chú Tân ở Quận 10 về quá trình thi công xây dựng nhà phố 4 tầng của Việt Quang Group

  • Anh Dũng đánh giá về chất lượng sửa nhà và Việt Quang Group

    Anh Dũng đánh giá về chất lượng sửa nhà và Việt Quang Group

  • Chị Thơ Bình Thạnh đánh giá về chất lượng thi công nhà phố sau khi hoàn thiện

    Chị Thơ Bình Thạnh đánh giá về chất lượng thi công nhà phố sau khi hoàn thiện

  • Chị Thảo quận 8 nhận xét chất lượng thi công và Việt Quang Group

    Chị Thảo quận 8 nhận xét chất lượng thi công và Việt Quang Group

  • Anh Cường Quận 9 đánh giá chất lượng sửa chữa nhà

    Anh Cường Quận 9 đánh giá chất lượng sửa chữa nhà

  • Anh Khiêm Quận 10 nhận xét chất lượng sau khi Việt Quang Group hoàn thành quá trình thi công sửa chữa

    Anh Khiêm Quận 10 nhận xét chất lượng sau khi Việt Quang Group hoàn thành quá trình thi công sửa chữa

  • Chị Giang quận 7 nhận xét Việt Quang và chất lượng công trình sau sửa chữa

    Chị Giang quận 7 nhận xét Việt Quang và chất lượng công trình sau sửa chữa

  • Công ty Việt Hưng Vương Bình Thạnh đánh giá quá trình thi công sửa chữa

    Công ty Việt Hưng Vương Bình Thạnh đánh giá quá trình thi công sửa chữa

  • Anh Bình Quận 7 nhận xét chất lượng thi công và Việt Quang Group

    Anh Bình Quận 7 nhận xét chất lượng thi công và Việt Quang Group

  • Đánh giá của chị Thảo về chất lượng công trình và Việt Quang

    Đánh giá của chị Thảo về chất lượng công trình và Việt Quang

  • Chú Phước Hóc Môn nhận xét quá trình thi công hoàn thiện

    Chú Phước Hóc Môn nhận xét quá trình thi công hoàn thiện

  • Công ty PACC nhận xét về chất lượng công trình và Việt Quang Group

    Công ty PACC nhận xét về chất lượng công trình và Việt Quang Group

  • Gia đình chị Thu đánh giá nhận xét chất lượng thi công của Việt Quang Group

    Gia đình chị Thu đánh giá nhận xét chất lượng thi công của Việt Quang Group

  • Nhận xét của gia đình chị Thư Bình Tân về chất lượng thi công Việt Quang Group

    Nhận xét của gia đình chị Thư Bình Tân về chất lượng thi công Việt Quang Group

  • Anh Đình quận Bình Thạnh đánh giá chất lượng thi công xây dựng sau khi hoàn thiện

    Anh Đình quận Bình Thạnh đánh giá chất lượng thi công xây dựng sau khi hoàn thiện

  • Anh Tiến quận 12 nhận xét quá trình thi công và Việt Quang Group

    Anh Tiến quận 12 nhận xét quá trình thi công và Việt Quang Group

  • Chị Thủy Tân Bình đánh giá chất lượng trình và Việt Quang Group

    Chị Thủy Tân Bình đánh giá chất lượng trình và Việt Quang Group

  • Đánh giá của Anh Minh về chất lượng thi công của Việt Quang Group

    Đánh giá của Anh Minh về chất lượng thi công của Việt Quang Group

  • Đánh giá của chị Ái về công trình và Việt Quang Group

    Đánh giá của chị Ái về công trình và Việt Quang Group

  • Đánh giá của anh Hiền về chất lượng thi công và Việt Quang Group

    Đánh giá của anh Hiền về chất lượng thi công và Việt Quang Group

  • Gia đình anh Sơn Bình Tân đánh giá chất lượng thi công

    Gia đình anh Sơn Bình Tân đánh giá chất lượng thi công

  • Chị Trân Quận 11 nhận xét chất lượng thi công hoàn thiện công trình

    Chị Trân Quận 11 nhận xét chất lượng thi công hoàn thiện công trình

  • Cô Thủy quận 3 đánh giá chất lượng thi công sửa chữa nhà của Việt Quang Group

    Cô Thủy quận 3 đánh giá chất lượng thi công sửa chữa nhà của Việt Quang Group

  • Anh Hiệp Tân Phú đánh giá nhận xét chất lượng thi công sửa nhà

    Anh Hiệp Tân Phú đánh giá nhận xét chất lượng thi công sửa nhà

  • Đánh giá của anh Thanh về quá trình thi công sửa chữa nhà phố

    Đánh giá của anh Thanh về quá trình thi công sửa chữa nhà phố

  • Anh Toản quận 9 nhận xét chất lượng thi công Việt Quang Group

    Anh Toản quận 9 nhận xét chất lượng thi công Việt Quang Group

  • Anh Quân quận 3 đánh giá cao chất lượng thi công

    Anh Quân quận 3 đánh giá cao chất lượng thi công

  • Đánh giá của Anh Lý về công tác thi công xây dựng nhà phố 6 tầng

    Đánh giá của Anh Lý về công tác thi công xây dựng nhà phố 6 tầng

  • Đánh giá của chú Ba sau khi Việt Quang hoàn thành công trình xây dựng nhà mới

    Đánh giá của chú Ba sau khi Việt Quang hoàn thành công trình xây dựng nhà mới

Bài viết mới nhất

Bài viết xem nhiều

Fanpage