Có nên chọn xây nhà trọn gói chìa khóa trao tay khi có nhu cầu xây dựng nhà? Chi phí xây dựng nhà ở trọn gói năm 2026 là nhiêu? Thời gian thi công hoàn thiện nhà bao nhiêu tháng? Xây nhà trọn gói gia chủ được hưởng những ưu đãi gì?…
Đối với những gia chủ bận rộn, không có nhiều thời gian theo sát công trình, xây nhà trọn gói chìa khóa trao tay là giải pháp tối ưu giúp tiết kiệm thời gian, kiểm soát chi phí và hạn chế tối đa rủi ro phát sinh trong quá trình thi công.
Gia đình anh Hà, ngụ tại TP. Thủ Đức, cũng từng đứng trước rất nhiều băn khoăn khi chuẩn bị xây dựng tổ ấm mới: Lựa chọn vật tư ra sao, tìm đội thợ nào uy tín, quản lý tiến độ thế nào để không bị đội chi phí… Sau quá trình tìm hiểu và làm việc với nhiều đơn vị khác nhau, anh Hà đã quyết định tin chọn Việt Quang Group làm nhà thầu thiết kế thi công xây dựng trọn gói nhờ quy trình làm việc minh bạch, báo giá rõ ràng và kinh nghiệm thực tế dày dặn trong lĩnh vực xây nhà phố tại TP.HCM và khu vực TP. Thủ Đức.
Thông tin dự án xây nhà trọn gói tại TP. Thủ Đức
|
Chủ đầu tư: |
Ông. Ngô Hải Hà |
|---|---|
| Địa điểm thi công: | TP. Thủ Đức – TP. HCM |
| Quy mô xây dựng: | Nhà phố 3 tầng |
| Diện tích: | 5x16m |
| Dịch vụ: | Xây nhà trọn gói |
| Thời gian thi công: | 120 ngày |
| Giám đốc khối phụ trách: | Ông. Lê Trọng Linh |
Với lợi thế khu đất nở hậu, mặt tiền thông thoáng, gia đình anh Hà mong muốn xây dựng một ngôi nhà phố 3 tầng hiện đại, tối ưu công năng, đảm bảo không gian sinh hoạt riêng tư cho từng thành viên trong gia đình nhưng vẫn có sự kết nối, gắn kết chung cho cả gia đình.
Mẫu thiết kế nhà 3 tầng 5x16m cho gia đình anh Hà tại TP. Thủ Đức
Khi lựa chọn dịch vụ xây nhà TP. Thủ Đức của Việt Quang Group, gia đình anh Hà được hưởng nhiều quyền lợi nổi bật, như:
- Miễn phí tư vấn phương án thiết kế phù hợp công năng
- Báo giá rõ ràng, chi tiết từng hạng mục
- Cam kết vật tư đúng chủng loại, đúng chất lượng
- Bảo hành kết cấu 05 năm
- Bảo hành hoàn thiện 01 năm
- Hỗ trợ thủ tục pháp lý xây dựng
Ngay khi nhận được yêu cầu đội ngũ kiến trúc sư, kỹ sư Việt Quang Group đã tiến hành khảo sát hiện trạng khu đất, trao đổi trực tiếp với gia đình anh Hà để hoàn thiện phương án thiết kế tối ưu nhất trước khi bước vào giai đoạn thi công xây dựng.
Lựa chọn phong cách hiện đại, ngôi nhà 3 tầng của gia đình anh Hà là sự kết hợp tinh tế các hình khối thẳng đứng, gọn gàng. Tận dụng tối đa lợi thế về quy mô, ngôi nhà sở hữu diện mạo thanh thoát, cuốn hút không hề bị thô cứng hay đơn điệu. Sự kết hợp giữa các mảng tường cùng các hệ khung cửa kính lớn tạo điểm nhấn vừa đủ và không bị rối mắt, vừa tối đa ánh sáng tự nhiên, tăng khả năng thông gió, góp phần mở rộng không gian bên trong cho ngôi nhà.
Công năng tầng trệt nhà 3 tầng 5x16m
Với chiều ngang 5m, tầng trệt phải được bố trí một cách thông minh để tạo cảm giác rộng rãi và thoáng đãng ngay khi bước vào nhà. Ngay sau khi bước vào nhà là khu vực gara để xe, tiếp sau đó là không gian phòng khách. Để tối ưu diện tích, phòng khách được thiết kế liên thông với phòng ăn. Cách bố trí này tạo sự liền mạch, giúp không gian trở nên rộng rãi hơn.
Nội thất căn nhà nên chọn các gam màu trung tính, kết hợp với sofa, bàn trà kiểu dáng tân cổ điển, đèn chùm hoặc đèn cây có chi tiết tinh tế. WC hiện đại bố trí ở vị trí góc phía cuối căn nhà không chỉ tạo vẻ đẹp thẩm mỹ mà còn mang đến sự thuận tiện trong sinh hoạt thường ngày tại tầng trệt.
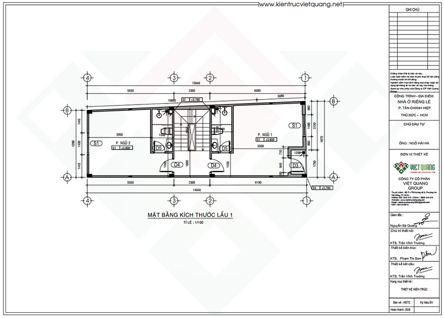
Công năng lầu 1 nhà 3 tầng 5x16m
Lầu 1 được ưu tiên bố trí 02 phòng ngủ riêng tư. Phòng ngủ chính chính được đặt ở vị trí đẹp nhất, sở hữu ban công riêng để gia tăng diện tích sử dụng và tạo không gian thoáng đãng cho căn phòng. Diện tích phòng ngủ cho phép bố trí giường lớn, tủ quần áo, bàn trang điểm phục vụ cho nhu cầu sử dụng cá nhân. Phòng ngủ nhỏ hơn thiết kế giếng trời để đưa ánh nắng trực tiếp từ mái và phân tán đến các phòng công năng. WC được đặt tại khu vực cầu thang bộ vừa thuận tiện cho nhu cầu sử dụng, vừa tối ưu hóa diện tích sử dụng các phòng công năng.
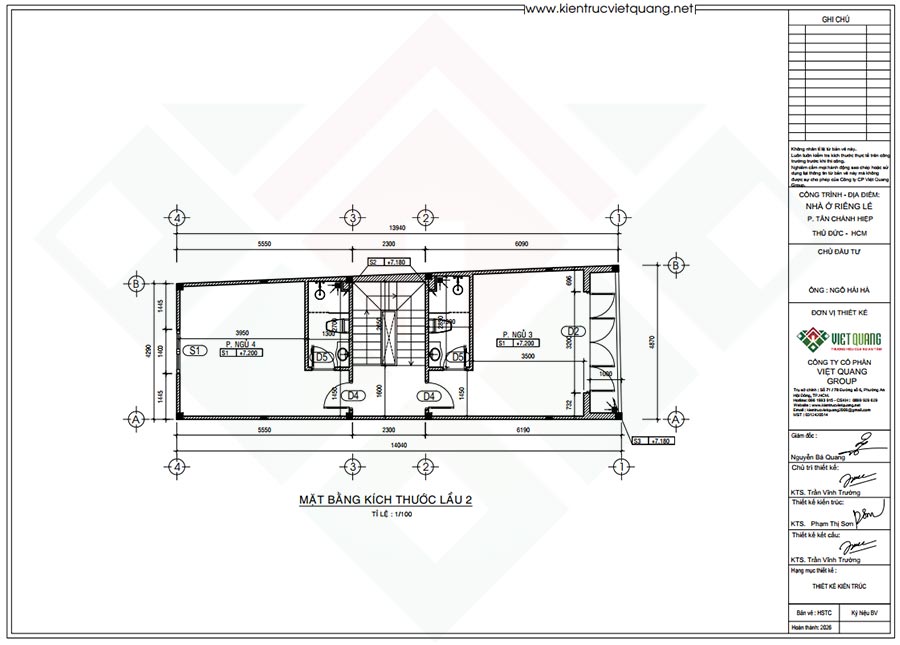
Công năng lầu 2 nhà 3 tầng 5x16m
Tương tự như lầu 1, lầu 2 thường được bố trí thêm các phòng ngủ cho các thành viên khác trong gia đình. Thiết kế chú trọng khả năng cung cấp ánh sáng, sự đối lưu không khí bên trong căn phòng. Điều này tạo ra giá trị cao cả về mặt vật chất và mặt tinh thần cho các thành viên, không chỉ là nơi trú ẩn an toàn mà còn tạo nên không gian sống thoải mái để nghỉ ngơi.
Hành trình thi công xây dựng tổ ấm 3 tầng 5x16m cho gia đình anh Hà ngụ TP.Thủ Đức
Để đảm bảo công trình được thi công đúng kỹ thuật, đúng tiến độ, đúng chất lượng cam kết, Việt Quang Group nhanh chóng hoàn tất các thủ tục hồ sơ pháp lý. Quá trình triển khai xây dựng nhà phố 3 tầng sân thượng cho gia đình anh Hà (TP. Thủ Đức) được thực hiện theo quy trình bài bản, kiểm soát chặt chẽ từng giai đoạn.
Thi công phần móng nhà 3 tầng
Căn cứ điều kiện địa chất khu vực TP. Thủ Đức, công trình nhà 3 tầng 5x16m của gia đình anh Hà được đội ngũ kỹ sư Việt Quang Group lựa chọn phương án thi công móng cọc. Phương án thi công móng cọc giúp cải thiện độ chặt, tăng khả năng chịu tải của đất nền yếu, đảm bảo sự ổn định trước các tác động của môi trường và trọng lượng nhà 3 tầng.
Thi công xây thô tầng trệt nhà 3 tầng 5x16m
Hoàn thành thi công xây dựng phần móng, đội ngũ nhân công xây dựng Việt Quang Group tiếp tục triển khai thi công xây dựng kết cấu tầng trệt. Tầng trệt khu vực chịu tải các tầng lầu phía trên của công trình, do đó tất cả công đoạn đều được giám sát chặt chẽ. Từng hạng mục: Gia công lắp dựng cốt thép cột, dầm sàn, đổ bê tông, xây tường bao, thi công cầu thang lên lầu 1,…Tất cả đều được GĐK, kỹ sư giám sát cũng chủ đầu tư thực hiện nghiệm thu, đánh giá trước khi triển khai sang hạng mục tiếp theo.
Thi công xây thô lầu 1 nhà 3 tầng 5x16m
Thi công phần thô lầu 1 được Việt Quang Group triển khai cẩn trọng do đây là không gian sinh hoạt chính của gia đình, đòi hỏi độ chính xác cao về kỹ thuật và liên kết kết cấu. Đội ngũ thi công tiến hành dựng cốt thép cột, dầm, sàn lầu 1 theo đúng hồ sơ thiết kế, sau đó đổ bê tông sàn đúng quy trình kỹ thuật nhằm đảm bảo khả năng chịu lực và độ bền lâu dài. Toàn bộ kết cấu lầu 1 được liên kết chặt chẽ với tầng trệt, tạo sự ổn định và phân bổ tải trọng hợp lý cho toàn bộ công trình nhà phố 3 tầng 5x16m.
Công trình đang thi công…
























































































































































































































































































































































































































































































