Vì sao nên chọn dịch vụ xây nhà trọn gói? Đơn giá xây dựng nhà tại TPHCM là bao nhiêu?… Đây luôn là những câu hỏi lớn của bất kỳ chủ đầu tư nào trước khi bắt đầu hành trình xây dựng. Bởi vì xây dựng nhà ở là một hành trình dài đòi hỏi sự tính toán kỹ lưỡng về chi phí, pháp lý, tiêu chuẩn an toàn và tiến độ. Trước những khó khăn đó, xây dựng nhà trọn gói chính là giải pháp tối ưu nhất giúp chủ đầu tư tiết kiệm thời gian, chủ động ngân sách và hạn chế tối đa rủi ro.
Gia đình anh Hùng phường An Khánh đã tin tưởng lựa chọn Việt Quang Group là nhà thầu đồng hành xây dựng nhà trọn gói – chìa khóa trao tay. Việt Quang Group sẽ giúp gia đình anh Hùng có được một tổ ấm mới 3 tầng tum sân thượng hiện đại, tối ưu diện tích 5.5x9m, đảm bảo đầy đủ công năng sử dụng. Và để hiểu hơn về quá trình thi công xây dựng nhà 3 tầng tum sân thượng cho gia đình anh Hùng, mời Quý vị cùng theo dõi bài viết dưới đây.
Thông tin dự án:
|
Chủ đầu tư: |
Ông. Hoàng Mạnh Hùng |
|---|---|
| Địa điểm thi công: | Phường An Khánh – TP.HCM |
| Quy mô xây dựng: | Nhà phố 3 tầng tum sân thượng |
| Diện tích: | 5.5x9m |
| Dịch vụ: | Xây nhà trọn gói |
| Thời gian thi công: | 90 ngày |
| Giám đốc khối phụ trách: | Ông. Phạm Văn Linh |
>>> Quý vị quan tâm vui lòng xem thêm liên kết:
- Bảng báo giá xây dựng nhà trọn gói mới nhất
- Đơn giá xây dựng phần thô nhà phố biệt thự
- Bảng báo giá sửa nhà trọn gói tại TpHCM
- Chi phí nâng cấp nhà cấp 4 thành 2 tầng trọn gói tại HCM
Phương án thiết kế, bố trí công năng nhà 3 tầng tum sân thượng 5.5x9m
Khi tiếp nhận thông tin từ bộ phận chăm sóc khách hàng, đội ngũ kiến trúc sư Việt Quang Group đã nhanh chóng bắt tay vào khảo sát hiện trạng, lắng nghe nhu cầu sinh hoạt của gia đình anh Hùng để lên ý tưởng thiết kế phù hợp. Với diện tích 5.5x9m khá khiêm tốn, bài toán đặt ra là phải tối ưu từng mét vuông, đảm bảo ngôi nhà vẫn rộng rãi, thoáng sáng và đầy đủ công năng cho gia đình trẻ.
Bản thiết kế 3D được thực hiện theo phong cách hiện đại, đường nét gọn gàng, hình khối vuông vức tạo cảm giác vững chắc nhưng không kém phần tinh tế. Kiến trúc sử dụng gam màu trung tính kết hợp những mảng kính lớn, giúp không gian luôn tràn ngập ánh sáng tự nhiên.
>>> Có thể Quý vị quan tâm: Báo giá thiết kế nhà ở TPHCM
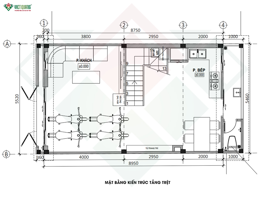
Ở bên trong, mặt bằng công năng được tổ chức rõ ràng và khoa học. Tầng trệt là không gian sinh hoạt chung gồm phòng khách, bếp và khu vực dùng bữa được bố trí liền mạch nhằm tạo độ rộng thoáng.
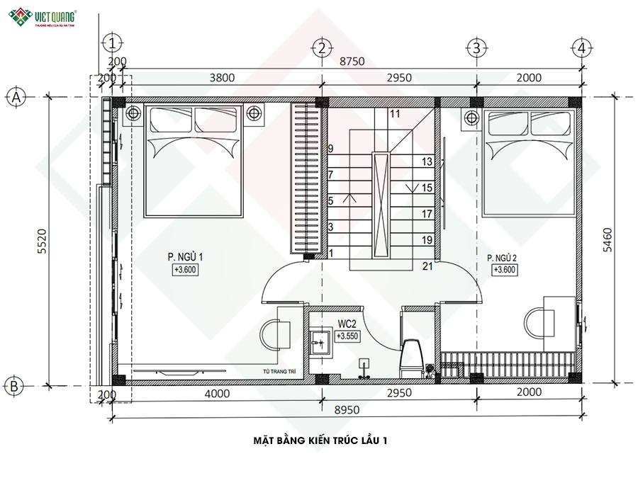
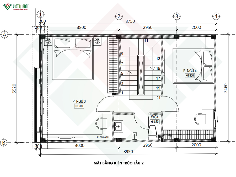
Lầu 1 và lầu 2 là khu vực riêng tư với các phòng ngủ thiết kế tối giản, đảm bảo sự ấm cúng và yên tĩnh.
Những bản vẽ mặt bằng chi tiết được Việt Quang Group trình bày minh bạch, bám sát nhu cầu thực tế của chủ đầu tư và tuân thủ đầy đủ tiêu chuẩn kỹ thuật. Đây chính là bước nền tảng quan trọng giúp giai đoạn thi công diễn ra thuận lợi, đúng tiến độ và đạt chất lượng cao nhất.
Tiếp theo, mời Quý vị cùng theo dõi quy trình thi công thực tế mà Việt Quang Group đã triển khai cho công trình 3 tầng tum sân thượng của gia đình anh Hùng từ phần móng, kết cấu, xây tô cho đến hoàn thiện và chuẩn bị bàn giao.
Quá trình thi công xây dựng nhà 3 tầng tum sân thượng 5.5x9m anh Hùng phường An Khánh
Ngay sau khi ký kết hợp đồng xay nha tron goi Việt Quang Group lập tức triển khai giai đoạn đầu tiên của quá trình thi công. Đội ngũ kỹ sư và giám sát nhanh chóng có mặt tại công trình để kiểm tra hiện trạng, đo đạc, định vị tim cọc, tim móng và rà soát toàn bộ các yếu tố kỹ thuật nhằm đảm bảo công trình được khởi công đúng tiêu chuẩn. Mọi bước chuẩn bị đều được thực hiện cẩn thận nhằm tối ưu mặt bằng thi công, đảm bảo kết cấu ngôi nhà vững chắc và an toàn ngay từ những ngày đầu.
Thi công phần móng nhà 3 tầng tum sân thượng
Đối với nhà phố diện tích 5.5x9m, đặc biệt xây cao 3 tầng tum sân thượng, phần móng đóng vai trò cực kỳ quan trọng để đảm bảo khả năng chịu lực và độ bền kết cấu lâu dài. Sau khi hoàn tất công tác định vị và bàn giao mốc giới, đội ngũ thi công Việt Quang Group tiến hành đào móng theo đúng bản vẽ thiết kế kết cấu.
» Công ty xây nhà trọn gói uy tín «
Móng cọc bê tông cốt thép được lựa chọn cho công trình, phù hợp với đặc điểm đất khu vực phường An Khánh – TP.HCM. Toàn bộ cọc được ép bằng máy chuyên dụng, đảm bảo đạt chiều sâu thiết kế, đúng tải trọng và không gây ảnh hưởng đến các công trình lân cận. Thép đà kiềng giằng móng được gia công theo đúng quy cách kỹ thuật, được kỹ sư giám sát kiểm tra từng hạng mục trước khi nghiệm thu và triển khai hạng mục tiếp theo.
Với quy trình làm việc thi công bài bản, phần móng ngôi nhà 3 tầng tum sân thượng của gia đình anh Hung được hoàn thiện vững chắc, tạo nên tàng kiên cố cho toàn bộ ngôi nhà. Sau khi hoàn thành phần móng, đội ngũ kỹ thuật tiếp tục kiểm tra cao độ, khả năng chịu lực và tiến hành dưỡng bê tông đầy đủ để đảm bảo đạt cường độ tối ưu trước khi bước sang giai đoạn tiếp theo.
Thi công xây dựng phần thô “khung xương” nhà 3 tầng tum sân thượng
Phần thô chính là “khung xương” của ngôi nhà, quyết định trực tiếp đến sự kiên cố, khả năng chống thấm, chống nứt,… về sau của công trinh. Hiểu điều đó, Việt Quang Group thi công các hạng mục: Cột, dầm, sàn, tường bao tuân thủ đúng hồ sơ thiết kế, sử dụng vật liệu đạt chuẩn và được giám sát nghiêm ngặt bởi kỹ sư công trình.
Các khu vực nhạy cảm như sàn vệ sinh, sân thượng, giếng trời được chống thấm 3 lớp và kiểm tra kỹ lưỡng. Hệ thống điện nước âm tường được lắp đặt gọn gàng, thử nghiệm trước khi hoàn thiện. Nhờ quy trình bài bản và đội ngũ chuyên nghiệp, phần thô được triển khai đúng tiến độ, chất lượng đảm bảo, hạn chế tối đa lỗi kỹ thuật.
♦ Xem thêm: Báo giá xây thô và nhân công hoàn thiện
Thi công hoàn thiện nhà 3 tầng tum sân thượng 5.5x9m
Bước vào giai đoạn thi công hoàn thiện, đội ngũ công nhân xây dựng Việt Quang Group triển khai từng hạng mục:
- Thi công hệ thống điện âm tường và hệ thống cấp thoát nước
- Ốp lát gạch nền, gạch tường khu vực phòng khách, phòng ngủ và nhà vệ sinh
- Lắp đặt cửa nhôm kính, cửa phòng và cửa ban công
- Thi công trần thạch cao trang trí
- Sơn nước nội thất và ngoại thất
- Lắp đặt thiết bị vệ sinh, thiết bị chiếu sáng
- Hoàn thiện lan can ban công và tay vịn cầu thang
Tuân thủ đúng quy trình kỹ và tiến độ đã cam kết Việt Quang Group đảm bảo vẻ đẹp thẩm mỹ cũng như sự tiện nghi cho các thành viên trong quá trình sử dụng ngôi nhà.
Công trình đang thi công….























































































































































































































































































































































































































































































































