Quý Khách đang có nhu cầu xây nhà 3 tầng và đang tìm kiếm những mẫu thiết kế nhà phố 3 tầng đẹp, hiện đại và sang trọng. Điều mà nhiều gia đình quan tâm về mẫu nhà là phải đảm bảo tính thẩm mỹ cũng như đủ không gian sinh sống cho thành viên trong gia đình.
Điều quan trọng nhất là tìm kiếm được những mẫu nhà phố phù hợp với phong cách cá nhân và phù hợp với ngân sách dự kiến xây nhà của gia đình mình.
Hôm nay, Việt Quang Group mời quý khách tham khảo Top 10 mẫu thiết kế nhà phố 3 tầng đẹp, hiện đại năm 2025 và những năm tiếp theo. Những mẫu thiết kế này đều do kiến trúc sư của chúng tôi lấy thông tin nhu cầu của Khách Hàng kết hợp với kinh nghiệm, khả năng sáng tạo của mình để dựng lên.
♦ Quý vị đang có nhu cầu xây dựng, hãy cùng tham khảo 4 dịch vụ sau:
- Đơn giá sửa nhà trọn gói mới nhất
- Chi phí xây nhà trọn gói chìa khóa trao tay tại HCM
- Báo giá xây nhà phần thô
- Giá sửa nhà thêm tầng
Mẫu nhà phố 3 tầng yêu thích nhất năm 2025
– Thiết kế nhà phố 3 tầng hiện đại: Đừng quá ngạc nhiên, bởi với chiều rộng mặt tiền từ 4 – 6m và chiều dài từ 10 – 16m, Bạn vẫn sẽ có được mẫu thiết kế nhà phố 3 tầng đẹp theo phong cách nhà ống. Dù thiết kế nhà ống được đánh giá là khá đơn giản nhưng vẫn có thể làm nổi bật sự sang trọng của không gian nhà, nếu Bạn biết cách bố trí công năng sử dụng và thiết kế mặt tiền một cách tính tế nhất.
– Thiết kế nhà phố 3 tầng với kiểu mái bằng: Với thiết kế mái bằng độc đáo cùng với khoảng không gian rộng rãi của sân thượng chính là điểm nhấn nổi bật trong phong cách thiết kế nhà phố 3 tầng này.
– Thiết kế nhà phố 3 tầng với kiểu mái thái: Mái thái hiện đang rất được ưa chuộng trong thiết kế nhà ở miền bắc. Sử dụng kiểu mái thái dạng chữ A, tạo nên dấu ấn đặc biệt cho không gian nhà.
Dưới đây là Top 10 mẫu thiết kế nhà phố 3 tầng đẹp, đơn giản nhưng hiện đại của Việt Quang, mời Quý Khách tham khảo.
1. Mẫu thiết kế nhà phố 3 tầng đẹp, hiện đại diện tích 3,5 x 13,4m
Đây là mẫu thiết kế nhà phố 3 tầng có diện tích 3,5 x 13.5m do kiến trúc sư Việt Quang thiết kế.
- Chủ đầu tư: Chị Anh
- Địa chỉ: Đường Lê Hoàng Thái, Phường 17, Q. Gò Vấp, Tp. HCM.
- Diện tích: 3,5 x13,4m
- Quy mô nhà phố 3 tầng
- Hình thức xây dựng: xây nhà trọn gói tại gò vấp
- Thời gian thiết kế và xây dựng: 2020
Cách bố trí công năng sử dụng nhà phố 3 tầng 1 trệt 1 lầu diện tích 3,5 x 13,4m
Tầng trệt:
Phía trước là một sân nhỏ diện tích 2×3,5m=7m2, tiếp đến là khu vực phòng khách bao gồm ghế sofa và kệ ti vi.
Thông thường với những ngôi nhà ống 3 tầng cầu thang được bố trí giữa nhà, phân chia đều diện tích trước và sau. Dưới gầm cầu thang nhà vệ sinh nho nhỏ.
Ngoài khu vực bếp và bàn ăn diện tích rộng khoảng 14m2, tầng trệt nhà chị Anh còn được thiết kế một phòng chờ cho Khách hoặc phòng nghỉ trưa tạm
Lầu 1:
Đi theo cầu thang sau 21 bậc thang mỗi bậc cao khoảng 17cm sẽ đến sàn lầu 1. Trên sàn lầu 1 này, kiến trúc sư đã thiết kế 02 phòng ngủ và 01 nhà vệ sinh.
Phòng ngủ phía được thiết kế ban công nhỏ, cửa sổ kiểu chữ L với mục đích quan sát được view rộng hơn. Mỗi phòng ngủ trên lầu 1 đều có diện tích 16m2.
Vì diện tích nhà không được rộng lên chỉ thiết kế một nhà vệ sinh chung với diện tích 1,5 x 2,3m = 3,45m2, nhưng vẫn được thiết kế nhà tắm đứng, bồn cầu, lavabo.
Cách bố trí công năng sử dụng lầu 2 và mái nhà phố 3 tầng 3,5 x 13,4m
Lầu 2:
– Lầu 2 của ngôi nhà phố 3 tầng 3,5 x 13,4m được thiết 01 phòng ngủ, 01 nhà vệ sinh, sân thượng trước.
– Sân thượng trước có diện tích 16m2, bao quanh sân thượng là tường bao cao từ 1.0 – 1.2m.
Mái nhà:
– Mái nhà ngôi nhà ống 3 tầng này được đổ bằng bê tông cốt thép.
– Với diện tích mái bê tông cốt thép hơn 30m2, đây là khu vực để bồn nước, máy nước nóng, mái kính lấy sáng..
2. Mẫu thiết kế mẫu nhà phố 3 tầng, đẹp diện tích 6.4 x 13.5m có gara để xe hơi
Thông tin về chủ sở hữu ngôi nhà phố 3 tầng này.
- Chủ đầu tư: Anh Hiếu – Chị Châu
- Địa chỉ: Lê Văn Lương, Xã Phước Kiểng, Huyện Nhà Bè
- Diện tích xây dựng: 6,4m x 13.5m
- Hạng mục thi công: Xây nhà phần thô và nhân công hoàn thiện
- Giá trị hợp đồng: 874.000.000 vnd
- Ngày khởi công: 05/06/2022
- Dự kiến bàn giao: 3.5 tháng
Sơ bộ tổng quan thiết kế phối
Mẫu thiết kế nhà phố 3 tầng có diện tích 6,4 x 13,4m có nhà để xe hơi là một mẫu thiết kế rất khó tìm kiếm trên google để cho Khách Hàng có nhu cầu tham khảo.
Vì hiện nay tại TP. HCM rất hiếm gia chủ sở hữu riêng cho mình một lô đất có chiều rộng từ 6-7m, đa số chiều rộng mặt tiền nhà phố từ 4-5m, nên việc thiết kế nhà xe hơi đi chung lối vào nhà bằng cửa chính là điều bình thường.
Ngoài ra, gia chủ có thể thiết kế và thi công bán hầm hoặc tầng hầm để để xe hơi cho nhà phố có chiều rộng mặt tiền từ 4-5m, nhưng sẽ tốn nhiều chi phí xây nhà hơn.
Với phong cách thiết kế hiện đại, không có các chi tiết hoa văn phào chỉ như kiến trúc cổ điển nhưng mẫu nhà phố 3 tầng này vẫn rất sang trọng và tự nhiên.
Mặt tiền mẫu nhà phố 3 tầng này sử dụng 2 gam màu chủ đạo là màu xám và màu trứng gà kết hợp các vật liệu hiện đại như: ban công, cửa nhôm Xingfa kính cường lực tạo lên sự mạnh mẽ, trẻ trung và năng động thể hiện cá tính phong cách của gia chủ.
Mặc khác, kiến trúc sư còn thiết kế thêm ban công lầu 1 và lầu 2 để trồng thêm cây xanh tạo sự mát mẻ và thông thoát cho ngôi nhà.

Mẫu thiết kế nhà phố 3 tầng có diện tích 6,4 x 13,4m có nhà để xe hơi riêng không đi chung với lối vào bằng cửa chính

Mặt tiền mẫu nhà phố 3 tầng này sử dụng 2 gam màu chủ đạo là màu xám và màu trứng gà kết hợp các vật liệu hiện đại như: ban công, cửa nhôm Xingfa kính cường lực tạo lên sự mạnh mẻ, trẻ trung và năng động thể hiện cá tính phong cách của gia chủ.
Mặt bằng bố trí công năng sử dụng tầng trệt của nhà phố 3 tầng 6,4 x 13,4m
Với lợi thế chiều rộng mặt tiền là 6,4m vì vậy các kiến trúc sư của Việt Quang rất dễ bố trí công năng sử dụng tầng trệt cho gia chủ.
Đi từ cửa cổng nhà qua bậc tam cấp sẽ đến không gian phòng khách rộng rãi, bên trái là nhà để xe hơi riêng được ngăn cách với phòng khách bằng một cánh cửa để hạn chế mùi hôi xăng dầu của xe.
Từ phòng khách đến khu vực Bếp là một khoảng không gian rộng lớn chỉ được ngăn cách bằng một vách ngăn lam gỗ nhỏ ngay vị trí bàn ăn thể hiện sự riêng tư ăn uống ở sau nhà khi có khách đến chơi.
Phía sau nhà là sân sau và nhà vệ sinh có diện tích lớn và thông thoáng. Cầu thang được bố trí hợp lý nằm ở giữa nhà ngăn cách giữa nhà xe và phòng bếp.
Mặt bằng bố trí công năng sử dụng lầu 1
– Lên đến mặt bằng lầu 1, diện tích xây dựng được thiết kế vuông vức lại 6,4 x 11m.
– Với nhu cầu thiết kế 02 phòng ngủ, 01 ban công với diện tích 8m2, 01 nhà vệ sinh chung, 01 phòng làm việc và thay đồ.
– Mời quý khách xem hình thiết kế mặt bằng bên dưới.
>>> Xem thêm: Bảng giá thiết kế nhà phố biệt thự
Bản vẽ mặt bằng thiết kế công năng sử dụng lầu 2 + mái nhà phố 3 tầng 6,4 x 13,4m
– Đi từ cầu thang lầu 1 lên đến lầu 2 sẽ gặp phòng thờ, phía sau là 01 phòng ngủ rộng với diện tích hơn 21m2 và 01 phòng giặt – phơi đồ.
– Phía trước là một sân thượng rộng 15m2 được bố trí nhiều khu vực để trồng cây xanh.
– Mái nhà được đổ bằng bê tông cốt thép và sẽ được chống thấm bằng các hóa chất Kova CT 11a, sử dụng để bồn nước, máy nước nóng. Ngoài ra có thể sử dụng để tấm pin năng lượng mặt trời.
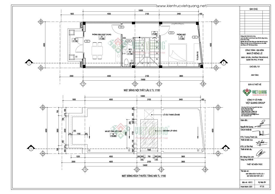
3. Mẫu thiết kế nhà phố 3 tầng kiến trúc tân cổ điển 4 x 12m
Thông tin sơ bộ về chủ sở hữu ngôi nhà
- Chủ đầu tư: Gia đình anh Tùng
- Địa chỉ: Đường Gò Dầu, P. Tân Sơn Nhì, Quận Tân Phú, Tp. HCM
- Diện tích: nhà phố 4 tầng 4 x 12m, kiến trúc tân cổ điển
- Hạng mục thi công: Xây nhà phần thô và nhân công hoàn thiện
- Giá trị hợp đồng: 740.000.000 vnd
- Ngày khởi công: 27/05/2022
- Dự kiến bàn giao: 3.5 tháng
Chiêm ngưỡng phối cảnh nhà phố 3 tầng 4 x 12m
Với phong cách thiết kế theo kiểu kiến trúc cổ điển, mặt tiền ngôi nhà 3 tầng này có nhiều hoa văn, chỉ phào uốn lượn.
Sự đối lập phong cách kiến trúc hiện đại và cổ điển, giữa một bên là kiến trúc cổ điển với nhiều hoa văn, chỉ phào, lan can ban công bằng sắt mỹ nghệ và vật liệu hiện đại cửa nhôm Xingfa kính cường lực tạo nên sự nổi khác biệt so với những ngôi nhà xung quanh của gia đình anh Tùng tại Tân Phú.
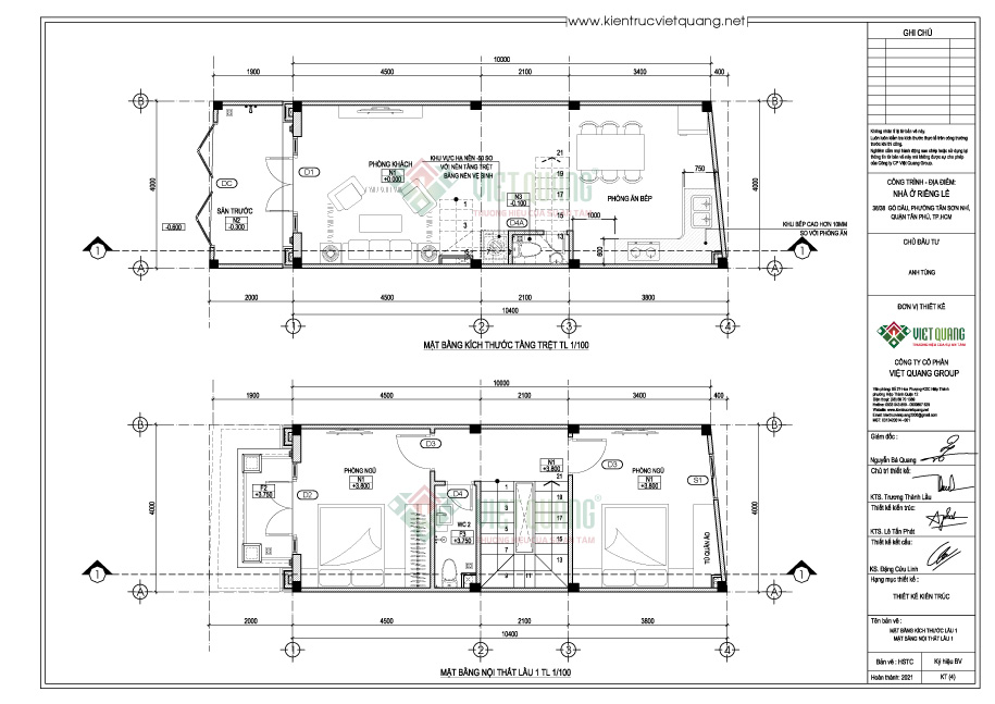
Mặt bằng bố trí công năng tầng trệt + lầu 1 nhà phố 3 tầng 4x12m
– Phía trước nhà là sân trước rộng khoảng 8m2. Tầng trệt gồm có: 01 phòng khách + 01 nhà bếp & bàn ăn + 01 nhà vệ sinh dưới gầm cầu thang.
– Đi theo 21 bậc thang từ dưới tầng trệt sẽ đến lầu 1 (chiều cao trệt – lầu 1 là 3,8m): Công năng sử dụng của lầu 1 bao gồm: Phòng ngủ trước rộng 12m2 và ban công, phòng ngủ sau rộng 13m2.
Mặt bằng bố trí công năng lầu 2 + mái nhà phố 3 tầng 4x12m
– Công năng sử dụng lầu 2 gồm 2: Phòng ngủ trước rộng 12m2 và ban công, phòng ngủ sau rộng 13m2.
– Mái nhà phố 3 tầng cổ điển thường được làm bằng bê tông cốt thép dùng để bồn nước, máy nước nóng, máy lọc nước.
4. Mẫu thiết kế nhà phố 3 tầng 1 tum hiện đại diện tích 3,95 x 13,4m
Dưới đây là mẫu thiết kế nhà phố 3 tầng có tum thang, kiến trúc hiện đại 3,95 x 13,4m, mời quý khách cùng tham khảo
- Chủ đầu tư: Anh Nguyễn Huy Cương
- Địa chỉ: Phạm Văn Bạch, Phường 15, Quận Tân Bình, TP. HCM
- Quy mô gồm có: 01 phòng khách + 01 bếp và bàn ăn + 04 phòng ngủ + 03 nhà vệ sinh, có tum che thang và sân thượng
- Diện tích: Nhà phố hiện đại 3 tầng 3,95 x 13,4m.
- Hình thức xây dựng: Thiết kế và xây nhà trọn gói quận Tân Bình
a, Mặt bằng tầng trệt nhà phố 3 tầng 3,95 x 13,4m
Nhìn vào mặt bằng thiết kế tầng trệt quý khách sẽ thấy ngôi nhà phố 3 tầng này được thiết kế 01 cửa cổng và 01 cửa chính. Xe máy đi về có thể đậu ở khu vực sân trước với 8m2 này và đóng cửa cổng lại rất an toàn, có thể dắt xe vào nhà khi đi ngủ.
Bước vào bên trong là không gian của phòng khách rộng gần 20m2 là nơi để tiếp khách và sum họp gia đình khá thoải mái.
Phía bên trong là cầu thang đi lên các tầng và khu vực bếp + bàn ăn, phía cuối nhà là 01 nhà vệ sinh nhỏ.
b, Mặt bằng bố trí phòng ngủ lầu 1 và lầu 2
Đi lên lầu 1 theo cầu thang có chiều rộng 900mm, mỗi bậc thang cao trung bình từ 16 – 18 cm, có 02 phòng ngủ rộng 16m2 + 01 nhà vệ sinh có phòng tắm đứng rất rộng rãi.
Ngoài ra, phòng ngủ phía trước còn được thiết kế 01 ban công. Phòng ngủ phía sau có 01 ô giếng trời thông gió.
c, Mặt bằng bố trí sân thượng + mái nhà phố 3 tầng tại quận Tân Bình sẽ như thế nào?
Thông thường đối với những gia đình có số thành viên trong nhà từ 4-6 thì thiết kế và xây nhà phố 3 tầng là đủ không gian để mọi người sinh hoạt và nghỉ nghơi.
Vì vậy, đại số tầng sân thượng đều được thiết kế dùng để làm sân trồng rau, cây xanh, cảnh cây, tập thể dục, thư giản.
Ngoài ra, tầng sân thượng còn được thiết kế một khu vực để làm phòng giặt và phơi đồ.
Phía trên sân thượng là mái nhà làm bằng bê tông cốt thép dùng để máy nước nóng, bồn nước…
5. Mẫu thiết kế nhà phố 1 trệt 2 lầu 1 để ở kết hợp cho thuê diện tích 4,6 x 17m
Mẫu nhà phố 3 tầng hiện đại tiếp theo mà Việt Quang muốn giới thiệu đến quý khách là ngôi nhà mơ ước của gia đình anh Thạch ngụ tại Bình Thạnh, Tp. HCM.
Anh Thạch liên hệ đến Việt Quang từ năm 2022, để được tư vấn thiết kế và báo giá xây dựng nhà, sau một thời gian nắm bắt thông tin và tư vấn chu đáo, tỉ mỉ các kiến trúc sư của chúng tôi đã thiết kế xong mẫu nhà phố 3 tầng hiện đại dành riêng cho gia đình anh.
Mời quý khách xem hình thiết kế phối cảnh và bản vẽ chi tiết bố trí công năng ngôi nhà này.
Mặt bằng bố trí công năng sử dụng tầng trệt
Với mục đích cho thuê 02 phòng trọ dưới tầng trệt để tăng thu nhập thụ động hàng tháng anh Thạch yêu cầu kiến trúc sư Việt Quang thiết kế như thế nào để phù hợp với nhu cầu mà không ảnh hưởng đến các công năng sử dụng của gia đình mình.
Dưới đây là phương án thiết kế mặt bằng tầng trệt, mời quý khách tham khảo.
Tầng trệt khu vực để ở gồm có: sân trước rộng 11m2 + 01 phòng khách + 01 bếp nhỏ và 01 nhà vệ sinh
Tầng trệt khu vực cho thuê: gồm có 2 phòng, mỗi phong đều có bếp + nhà vệ sinh, diện tích khoảng 19m2.
Mặt bằng bố trí công năng sử dụng lầu 1 + lầu 2
Công năng sử dụng lầu 1 bao gồm: 01 phòng ngủ master (có nhà vệ sinh riêng + ban công), 02 phòng ngủ nhỏ và 01 nhà vệ sinh riêng.
Lầu 2: gồm có 01 phòng ngủ; 01 phòng thờ; 01 nhà vệ sinh; 01 phòng tập thể dục rộng 27m2.
Mặt bằng bố trí mái nhà và mặt cắt dọc nhà phố 3 tầng 4,6 x17m
Với thiết kế mái nhà làm bằng bê tông cốt thép và được xây tường bao xung quanh lên cao đến 1,1m. Mái bê tông sẽ là khu vực dùng để máy nước nóng, bồn nước, máy lọc nước và tấm pin năng lượng mặt trời.
Mặt cắt dọc nhà từ trên xuống dưới sẽ phần nào giúp quý khách dễ hình dung hơn về ngôi nhà của mình.
Dựa vào mặt cắt dọc nhà quý khách sẽ biết được chiều dài nhà là 16,9m; chiều dài sân là 3,74m; chiều cao của mỗi tầng, và tổng chiều cao nhà 11,7m.
Ngoài ra, dựa vào mặt cắt dọc nhà quý khách còn có thể tưởng tượng được không gian phân chia từng vị trí công năng sử dụng của ngôi nhà mình. Mặt cắt nhà giúp người xem hình dung được rõ hơn về không gian nhà theo chiều đứng.
6. Mẫu thiết kế nhà phố 3 tầng hiện đại 4,1 x 12m tại Bình Tân
Đây là mẫu thiết kế nhà phố 3 tầng đẹp có diện tích 4,1 x 12m của gia đình chị Khéo xây nhà tại Bình Tân.
Hiện tại công trình đã được thi công và bàn giao cho chủ đầu tư vào tháng 12/2020.
7. Mẫu thiết kế nhà phố 3 tầng đẹp hiện đại 5 x 15m tại Bình Dương
- Chủ đầu tư: Anh Nam
- Địa chỉ: TT Vĩnh Tân, Huyện Tân Uyên, Bình Dương
- Diện tích: 5m x 15m
- Phong cách thiết kế: Kiến trúc hiện đại
- Hình thức xây dựng: xây nhà trọn gói tại Bình Dương
- Trình trạng: công trình đã được thi công và bàn giao vào 12/2020.
8. Mẫu thiết kế nhà phố 3 tầng hiện đại 4 x 13m tại quận 12
- Chủ đầu tư: Anh Hạnh
- Địa chỉ: Xã Đông Thạnh, Huyện Hóc Môn, Tp HCM
- Diện tích: 4m x 13m
- Phong cách thiết kế: Kiến trúc hiện đại – đẹp
- Trình trạng: Dự kiến khởi công vào tháng 7/2022
>>> Quý vị cần tìm hiểu đơn giá hãy xem ngay bài viết: Báo giá xây nhà quận 12 mới nhất
9. Mẫu thiết kế nhà phố 3 tầng diện tích 7 x 13m tại quận 9
Dưới đây là mẫu thiết kế nhà phố 3 tầng kiến trúc hiện đại diện tích 7 x 13m tại quận 9, do kiến trúc sư Việt Quang thiết kế cho gia đình chị Thúy. Mời quý khách cùng tham khảo.
10. Mẫu thiết kế nhà phố 1 trệt 2 lầu 4 x 11m tại quận Bình Thạnh
- Chủ đầu tư: Chị Mai
- Địa chỉ: Huỳnh Tịnh Của, Phường 19, Bình Thạnh, TP. HCM
- Diện tích: 4m x 11m
- Phong cách thiết kế: Kiến trúc hiện đại – đẹp
- Trình trạng: Hiện tại công trình đang thi công xây dựng, dự kiến sẽ bàn giao vào tháng 7/2022.
Những điều chú ý khi lựa chọn các mẫu nhà phố 3 tầng
Để có được thiết kế nhà phố 3 tầng đẹp, Bạn cần phải đơn giản hóa tất cả chi tiết sử dụng trong ngôi nhà. Tốt nhất hãy chú trọng vào phần đường nét của ngôi nhà vì như vậy mới có thể đánh lừa thị giác của người bên ngoài, để khi họ nhìn vào thấy ngôi nhà Bạn đẹp và ấn tượng.
Thiết kế nhà phố 3 tầng với gara: Hầu hết các gia đình khá giả ở thành phố đều có xe ô tô riêng, để thuận tiện cho việc bảo quản xe thì có thể tận dụng thiết kế nhà phố 3 tầng với gầm gara. Bên cạnh đó để làm tăng thêm sự nổi bật cho ngôi nhà, nên bố trí khoảng sân vườn ở trên tầng thượng. Đây là mẫu nhà đơn giản nhưng lại chứa đựng được nét hiện đại cho nên cũng đang rất yêu thích hiện nay.
Ngoài ra cũng nên chú ý vào phần ban công khi thiết kế nhà 3 tầng, bởi ban công với việc chưng nhiều chậu cây xanh sẽ giúp ngôi nhà của Bạn trở nên đẹp, thông thoáng hơn giữa lòng thành phố ồn ào và náo nhiệt.
Đừng tốn quá nhiều thời gian vào việc tìm kiếm bản vẽ trên mạng nếu như Bạn chưa có nhiều kinh nghiệm mà hãy dành thời gian đó vào việc kiếm tiền và giao lại công việc thiết kế cho các công ty thiết kế xây dựng nhà chuyên nghiệp nhé. Chúc các bạn sẽ sớm thực hiện được ước mơ với căn nhà của mình.
Mẫu số mẫu nội thất nhà phố 3 tầng đẹp mà Bạn có thể tham khảo
Trên đây là một số lưu ý cũng như một số mẫu thiết kế nhà phố 3 tầng đẹp để cho Bạn tham khảo. Hi vọng Quý Khách có thể lựa chọn được mẫu thiết kế đẹp để có không gian sống hoàn hảo nhất cho các thành viên trong gia đình mình.
Nếu như Bạn vẫn chưa tìm được ngôi nhà nào ưng ý cho mình hay gặp khó khăn trong việc chọn lựa mẫu nhà nào phù hợp với sở thích và diện tích thì các Bạn có thể liên hệ với Kiến Trúc Việt Quang qua Hotline: 0909 857 629 để được tư vấn thêm.
>>> Công ty xây nhà trọn gói uy tín giá rẻ chất lượng tại HCM <<<
Với hàng trăm khách hàng đã tin tưởng và hài lòng với dịch vụ thiết kế nhà phố của chúng tôi, Việt Quang group cam kết sẽ đem đến cho Quý Khách một phong cách làm việc chuyên nghiệp và xây dựng cho Bạn những bản vẽ nhà phố ấn tượng, phù hợp với nhu cầu khách hàng.
Từ khóa xem thêm: Sửa chữa nhà | Thiết kế xây dựng | Xây nhà trọn gói | Giá xây dựng nhà | Gía xây thô | cách tính m2 xây nhà | hợp đồng xây nhà | sửa nhà nâng tầng
Nguồn bài viết: Việt Quang Group



































































































































































































































































































































































































































































































































